Elected Officials
Courts
Departments
Initiatives
Open Government
About
Login / Register
Home
/
Property & Tax Records
/
Property Records
/
Property & Tax Search
/
Parcel Profile
/
Print View
Search for Another Parcel
Parcel Profile
Historical Card
Sketches
Photos
Tax Map
Taxes
Print View
Print This Page
Address: 261 SCOTT ST
Parcel: 19060053021300
Parcel Profile
Address
261 | SCOTT | ST
Street Status
PAVED | SIDEWALK
School District
CITY OF ERIE SCHOOL
Acreage
0.0916
Classification
R
Land Use Code
TWO FAMILY
Legal Description
261 SCOTT ST 27 X 120 IRREG | 0.0916 AC
Square Feet
2000
Topo
LEVEL
Utility
ALL PUBLIC
Zoning
Please contact your municipal zoning officer
Deed Book
2022
Deed Page
022277
2026 Tax Values
Land Value / Taxable
10,900 / 10,900.00
Building Value / Taxable
38,070 / 38,070.00
Total Value / Taxable
48,970 / 48,970.00
Clean & Green
Inactive
Homestead Status
Inactive
Farmstead Status
Inactive
Lerta Amount
0
Lerta Expiration Year
0
Residential Data
Card 1
Style
OLD STYLE
Basement
FULL
Year Built
1897
Exterior Wall
ALUMINUM/VINYL
Total Living Area
2000
Full Baths
2
Half Baths
0
Fuel Type
GAS
Heating
CENTRAL
Heating System
FORCED AIR
Stories
2.0
Total Bedrooms
6
Total Family Rooms
0
Total Rooms
11
Fireplaces
0
Other Buildings & Yards
No OBY Data Found
Sales History
Sale Date
Type
Price
Book / Page
Other Info
10/13/2022
LAND & BUILDING
84900
2022 / 022277
DEED
10/10/2022
0
2022 / 021947
12/19/2019
LAND & BUILDING
0
2019 / 026275
QUIT CLAIM DEED
3/18/2015
LAND & BUILDING
64000
2015 / 004901
WARRANTY/SURVIVORSHIP DEED
8/9/2005
LAND & BUILDING
43000
1259 / 0457
WARRANTY/SURVIVORSHIP DEED
6/17/1996
0
0445 / 1448
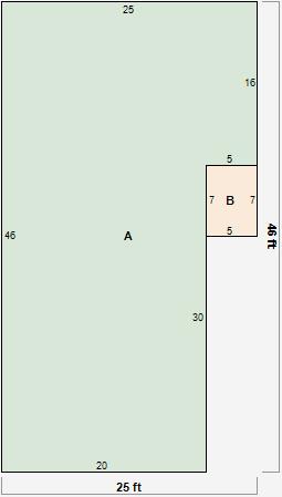
Parcel Sketches
Residential Card 1
A
MAIN
1000 square feet
B
OFP OPEN FRAME PORCH
35 square feet
Parcel Images
Please note:
this tab is for informational purposes only and may not show all delinquencies, see the Taxes tab for more accurate delinquent taxes due.