Elected Officials
Courts
Departments
Initiatives
Open Government
About
Login / Register
Home
/
Property & Tax Records
/
Property Records
/
Property & Tax Search
/
Parcel Profile
/
Print View
Search for Another Parcel
Parcel Profile
Historical Card
Sketches
Photos
Tax Map
Taxes
Print View
Print This Page
Address: 2645 MYRTLE ST
Parcel: 19060053021400
Parcel Profile
Address
2645 | MYRTLE | ST
Street Status
PAVED | SIDEWALK
School District
CITY OF ERIE SCHOOL
Acreage
0.0733
Classification
R
Land Use Code
SINGLE FAMILY
Legal Description
2645 MYRTLE ST IRREG
Square Feet
900
Topo
LEVEL
Utility
ALL PUBLIC
Zoning
Please contact your municipal zoning officer
Deed Book
2023
Deed Page
009972
2025 Tax Values
Land Value / Taxable
10,100 / 10,100.00
Building Value / Taxable
35,900 / 35,900.00
Total Value / Taxable
46,000 / 46,000.00
Clean & Green
Inactive
Homestead Status
Inactive
Farmstead Status
Inactive
Lerta Amount
0
Lerta Expiration Year
0
Residential Data
Card 1
Style
BUNGALOW
Basement
FULL
Year Built
1882
Exterior Wall
FRAME
Total Living Area
900
Full Baths
1
Half Baths
0
Fuel Type
GAS
Heating
CENTRAL
Heating System
FORCED AIR
Stories
1.0
Total Bedrooms
3
Total Family Rooms
0
Total Rooms
5
Fireplaces
0
Other Buildings & Yards
Description
Built
Width
Length
Area
FRAME OR CB DETACHED GARAGE
1965
14
24
336
Sales History
Sale Date
Type
Price
Book / Page
Other Info
6/23/2023
LAND & BUILDING
78000
2023 / 009972
SPECIAL WARRANTY DEED
2/22/1999
LAND & BUILDING
38000
0619 / 0344
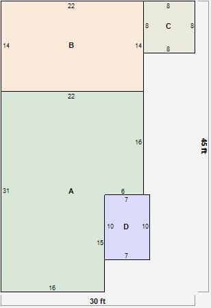
Parcel Sketches
Residential Card 1
A
MAIN
592 square feet
B
UNFIN BSMT BASEMENT UNFINISHED 1S FR ONE STORY FRAME
308 square feet
C
MA_PT CONC/MAS PATIO
64 square feet
D
OFP OPEN FRAME PORCH
70 square feet
Parcel Images