Elected Officials
Courts
Departments
Initiatives
Open Government
About
Login / Register
Home
/
Property & Tax Records
/
Property Records
/
Property & Tax Search
/
Parcel Profile
/
Print View
Search for Another Parcel
Parcel Profile
Historical Card
Sketches
Photos
Tax Map
Taxes
Print View
Print This Page
Address: 213 W 26 ST
Parcel: 19060053041100
Parcel Profile
Address
213 | W | 26 | ST
Street Status
PAVED | SIDEWALK
School District
CITY OF ERIE SCHOOL
Acreage
0.0914
Classification
R
Land Use Code
SINGLE FAMILY
Legal Description
213 W 26 ST 29.5 X 135
Square Feet
1176
Topo
LEVEL
Utility
ALL PUBLIC
Zoning
Please contact your municipal zoning officer
Deed Book
2021
Deed Page
005439
2026 Tax Values
Land Value / Taxable
10,800 / 10,800.00
Building Value / Taxable
44,560 / 44,560.00
Total Value / Taxable
55,360 / 55,360.00
Clean & Green
Inactive
Homestead Status
Inactive
Farmstead Status
Inactive
Lerta Amount
0
Lerta Expiration Year
0
Residential Data
Card 1
Style
OLD STYLE
Basement
FULL
Year Built
1907
Exterior Wall
COMPOSITION
Total Living Area
1176
Full Baths
1
Half Baths
0
Fuel Type
GAS
Heating
CENTRAL
Heating System
FORCED AIR
Stories
2.0
Total Bedrooms
3
Total Family Rooms
0
Total Rooms
6
Fireplaces
0
Other Buildings & Yards
No OBY Data Found
Sales History
Sale Date
Type
Price
Book / Page
Other Info
3/8/2021
LAND & BUILDING
129000
2021 / 005439
FIDUCIARY DEED
12/17/2009
LAND & BUILDING
18000
1609 / 1624
DEED
12/6/2006
LAND & BUILDING
3500
1381 / 0340
WARRANTY/SURVIVORSHIP DEED
10/24/1995
0
0409 / 1094
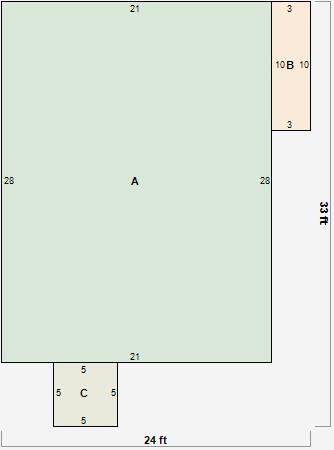
Parcel Sketches
Residential Card 1
A
MAIN
588 square feet
B
EFP ENCL FRAME PORCH
30 square feet
C
MA STOOP/TERR MAS STOOP
25 square feet
Parcel Images
Please note:
this tab is for informational purposes only and may not show all delinquencies, see the Taxes tab for more accurate delinquent taxes due.