Elected Officials
Courts
Departments
Initiatives
Open Government
About
Login / Register
Home
/
Property & Tax Records
/
Property Records
/
Property & Tax Search
/
Parcel Profile
/
Print View
Search for Another Parcel
Parcel Profile
Historical Card
Sketches
Photos
Tax Map
Taxes
Print View
Print This Page
Address: 3208 PEACH ST
Parcel: 19061001010100
Parcel Profile
Address
3208 | PEACH | ST
Street Status
PAVED | SIDEWALK
School District
CITY OF ERIE SCHOOL
Acreage
0.1807
Classification
C
Land Use Code
RESTAURANTS, STORES (RETAIL)
Legal Description
3208 PEACH ST 59.58 X IRR
Square Feet
3120
Topo
LEVEL
Utility
ALL PUBLIC
Zoning
Please contact your municipal zoning officer
Deed Book
1608
Deed Page
1211
2026 Tax Values
Land Value / Taxable
63,000 / 63,000.00
Building Value / Taxable
70,100 / 70,100.00
Total Value / Taxable
133,100 / 133,100.00
Clean & Green
Inactive
Homestead Status
Inactive
Farmstead Status
Inactive
Lerta Amount
0
Lerta Expiration Year
0
Commercial Data
Card 1
RETAIL MULTI OCCUP
Business Living Area - 3120
Year Built - 1883
Improvement Name -
Value - 66190
Other Buildings & Yards
No OBY Data Found
Sales History
Sale Date
Type
Price
Book / Page
Other Info
12/10/2009
LAND & BUILDING
135000
1608 / 1211
DEED
7/14/1986
0
1638 / 0059
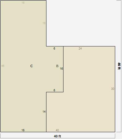
Parcel Sketches
Commercial Card 1
A
MAIN
832 square feet
B
MAIN
1456 square feet
C
MAIN
832 square feet
Parcel Images
Please note:
this tab is for informational purposes only and may not show all delinquencies, see the Taxes tab for more accurate delinquent taxes due.