Elected Officials
Courts
Departments
Initiatives
Open Government
About
Login / Register
Home
/
Property & Tax Records
/
Property Records
/
Property & Tax Search
/
Parcel Profile
/
Print View
Search for Another Parcel
Parcel Profile
Historical Card
Sketches
Photos
Tax Map
Taxes
Print View
Print This Page
Address: 3306 MAPLE ST
Parcel: 19061005020500
Parcel Profile
Address
3306 | MAPLE | ST
Street Status
PAVED | SIDEWALK
School District
CITY OF ERIE SCHOOL
Acreage
0.1102
Classification
R
Land Use Code
SINGLE FAMILY
Legal Description
3306 MAPLE ST 40X120
Square Feet
1440
Topo
LEVEL
Utility
ALL PUBLIC
Zoning
Please contact your municipal zoning officer
Deed Book
2021
Deed Page
021879
2026 Tax Values
Land Value / Taxable
11,000 / 11,000.00
Building Value / Taxable
37,500 / 37,500.00
Total Value / Taxable
48,500 / 48,500.00
Clean & Green
Inactive
Homestead Status
Inactive
Farmstead Status
Inactive
Lerta Amount
0
Lerta Expiration Year
0
Residential Data
Card 1
Style
OLD STYLE
Basement
FULL
Year Built
1893
Exterior Wall
FRAME
Total Living Area
1440
Full Baths
1
Half Baths
0
Fuel Type
GAS
Heating
CENTRAL
Heating System
FORCED AIR
Stories
2.0
Total Bedrooms
3
Total Family Rooms
0
Total Rooms
6
Fireplaces
0
Other Buildings & Yards
Description
Built
Width
Length
Area
METAL SHED
1980
12
13
156
Sales History
Sale Date
Type
Price
Book / Page
Other Info
8/16/2021
LAND & BUILDING
5000
2021 / 021879
QUIT CLAIM DEED
9/21/2018
LAND & BUILDING
30000
2018 / 019477
WARRANTY/SURVIVORSHIP DEED
4/3/2013
LAND & BUILDING
0
2013 / 007720
TAX DEED
3/22/1976
0
1205 / 0001
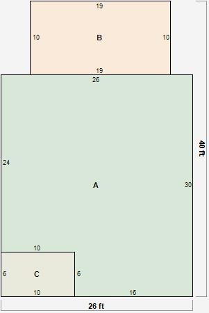
Parcel Sketches
Residential Card 1
A
MAIN
720 square feet
B
OFP OPEN FRAME PORCH
190 square feet
C
WDDCK WOOD DECKS
60 square feet
Parcel Images
Please note:
this tab is for informational purposes only and may not show all delinquencies, see the Taxes tab for more accurate delinquent taxes due.