Elected Officials
Courts
Departments
Initiatives
Open Government
About
Login / Register
Home
/
Property & Tax Records
/
Property Records
/
Property & Tax Search
/
Parcel Profile
/
Print View
Search for Another Parcel
Parcel Profile
Historical Card
Sketches
Photos
Tax Map
Taxes
Print View
Print This Page
Address: 3622 MAPLE ST
Parcel: 19061007020500
Parcel Profile
Address
3622 | MAPLE | ST
Street Status
PAVED | SIDEWALK
School District
CITY OF ERIE SCHOOL
Acreage
0.1019
Classification
R
Land Use Code
SINGLE FAMILY
Legal Description
3622 MAPLE ST 37 X 120
Square Feet
1369
Topo
LEVEL
Utility
ALL PUBLIC
Zoning
Please contact your municipal zoning officer
Deed Book
2024
Deed Page
001198
2026 Tax Values
Land Value / Taxable
9,800 / 9,800.00
Building Value / Taxable
50,010 / 50,010.00
Total Value / Taxable
59,810 / 59,810.00
Clean & Green
Inactive
Homestead Status
Inactive
Farmstead Status
Inactive
Lerta Amount
0
Lerta Expiration Year
0
Residential Data
Card 1
Style
OLD STYLE
Basement
FULL
Year Built
1925
Exterior Wall
MASONRY & FRAME
Total Living Area
1369
Full Baths
1
Half Baths
0
Fuel Type
GAS
Heating
CENTRAL
Heating System
FORCED AIR
Stories
2.0
Total Bedrooms
3
Total Family Rooms
0
Total Rooms
7
Fireplaces
0
Other Buildings & Yards
Description
Built
Width
Length
Area
FRAME OR CB DETACHED GARAGE
1940
10
18
180
FRAME OR CB DETACHED GARAGE
1940
12
24
288
Sales History
Sale Date
Type
Price
Book / Page
Other Info
1/25/2024
LAND & BUILDING
105000
2024 / 001198
SPECIAL WARRANTY DEED
11/21/2022
LAND & BUILDING
0
2022 / 024791
DEED
6/15/2018
LAND & BUILDING
0
2018 / 011528
QUIT CLAIM DEED
3/28/2018
LAND & BUILDING
17500
2018 / 005725
SPECIAL WARRANTY DEED
12/21/2017
LAND & BUILDING
0
2017 / 027641
DEED
10/13/2017
LAND & BUILDING
3222
2017 / 022415
SHERIFF'S DED
10/24/2003
LAND & BUILDING
58900
1079 / 1452
WARRANTY/SURVIVORSHIP DEED
12/18/1997
0
0534 / 1589
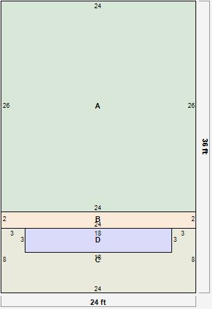
Parcel Sketches
Residential Card 1
A
MAIN
624 square feet
B
UNFIN BSMT BASEMENT UNFINISHED 1SMAS MASONRY AT FN ATTIC-FINISHED
48 square feet
C
EMP ENCL MASONRY PORCH
138 square feet
D
EMP ENCL MASONRY PORCH 1S FR ONE STORY FRAME
54 square feet
Parcel Images
Please note:
this tab is for informational purposes only and may not show all delinquencies, see the Taxes tab for more accurate delinquent taxes due.