Elected Officials
Courts
Departments
Initiatives
Open Government
About
Login / Register
Home
/
Property & Tax Records
/
Property Records
/
Property & Tax Search
/
Parcel Profile
/
Print View
Search for Another Parcel
Parcel Profile
Historical Card
Sketches
Photos
Tax Map
Taxes
Print View
Print This Page
Address: 1041 W 32 ST
Parcel: 19061017021100
Parcel Profile
Address
1041 | W | 32 | ST
Street Status
PAVED | SIDEWALK
School District
CITY OF ERIE SCHOOL
Acreage
0.2250
Classification
R
Land Use Code
TWO FAMILY
Legal Description
1041 W 32 ST 70 X 140
Square Feet
2678
Topo
ABOVE STREET
Utility
ALL PUBLIC
Zoning
Please contact your municipal zoning officer
Deed Book
1152
Deed Page
1107
2026 Tax Values
Land Value / Taxable
19,100 / 19,100.00
Building Value / Taxable
99,600 / 99,600.00
Total Value / Taxable
118,700 / 118,700.00
Clean & Green
Inactive
Homestead Status
Active
Farmstead Status
Inactive
Lerta Amount
0
Lerta Expiration Year
0
Residential Data
Card 1
Style
OLD STYLE
Basement
FULL
Year Built
1920
Exterior Wall
BRICK
Total Living Area
2678
Full Baths
2
Half Baths
0
Fuel Type
GAS
Heating
CENTRAL
Heating System
FORCED AIR
Stories
2.0
Total Bedrooms
4
Total Family Rooms
0
Total Rooms
10
Fireplaces
0
Other Buildings & Yards
Description
Built
Width
Length
Area
FRAME OR CB DETACHED GARAGE
1920
32
22
704
Sales History
Sale Date
Type
Price
Book / Page
Other Info
7/7/2004
LAND & BUILDING
102000
1152 / 1107
DEED
5/21/1993
0
0270 / 0331
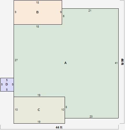
Parcel Sketches
Residential Card 1
A
MAIN
1339 square feet
B
EFP ENCL FRAME PORCH
162 square feet
C
OMP OPEN MASONRY PORCH
190 square feet
D
MA STOOP/TERR MAS STOOP
25 square feet
Parcel Images
Please note:
this tab is for informational purposes only and may not show all delinquencies, see the Taxes tab for more accurate delinquent taxes due.