Elected Officials
Courts
Departments
Initiatives
Open Government
About
Login / Register
Home
/
Property & Tax Records
/
Property Records
/
Property & Tax Search
/
Parcel Profile
/
Print View
Search for Another Parcel
Parcel Profile
Historical Card
Sketches
Photos
Tax Map
Taxes
Print View
Print This Page
Address: 3226 CHARLOTTE ST
Parcel: 19061047020700
Parcel Profile
Address
3226 | CHARLOTTE | ST
Street Status
PAVED | SIDEWALK
School District
CITY OF ERIE SCHOOL
Acreage
0.1510
Classification
R
Land Use Code
SINGLE FAMILY
Legal Description
3226 CHARLOTTE 46 X 143
Square Feet
1534
Topo
LEVEL
Utility
ALL PUBLIC
Zoning
Please contact your municipal zoning officer
Deed Book
1183
Deed Page
0543
2026 Tax Values
Land Value / Taxable
27,600 / 27,600.00
Building Value / Taxable
66,200 / 66,200.00
Total Value / Taxable
93,800 / 93,800.00
Clean & Green
Inactive
Homestead Status
Inactive
Farmstead Status
Inactive
Lerta Amount
0
Lerta Expiration Year
0
Residential Data
Card 1
Style
OLD STYLE
Basement
FULL
Year Built
1929
Exterior Wall
ALUMINUM/VINYL
Total Living Area
1534
Full Baths
1
Half Baths
0
Fuel Type
GAS
Heating
CENTRAL
Heating System
FORCED AIR
Stories
1.5
Total Bedrooms
4
Total Family Rooms
0
Total Rooms
7
Fireplaces
0
Other Buildings & Yards
No OBY Data Found
Sales History
Sale Date
Type
Price
Book / Page
Other Info
10/21/2004
LAND & BUILDING
74000
1183 / 0543
WARRANTY/SURVIVORSHIP DEED
8/30/1985
0
1595 / 0108
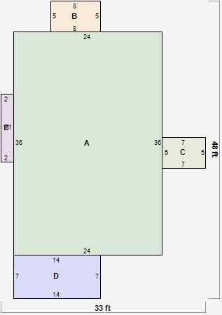
Parcel Sketches
Residential Card 1
A
MAIN
864 square feet
B
EFP ENCL FRAME PORCH
40 square feet
C
WDDCK WOOD DECKS
35 square feet
D
OFP OPEN FRAME PORCH
98 square feet
E
FROVR FRAME OVERHANG
22 square feet
Parcel Images
Please note:
this tab is for informational purposes only and may not show all delinquencies, see the Taxes tab for more accurate delinquent taxes due.