Elected Officials
Courts
Departments
Initiatives
Open Government
About
Login / Register
Home
/
Property & Tax Records
/
Property Records
/
Property & Tax Search
/
Parcel Profile
/
Print View
Search for Another Parcel
Parcel Profile
Historical Card
Sketches
Photos
Tax Map
Taxes
Print View
Print This Page
Address: 2041 W 32 ST
Parcel: 19061059020800
Parcel Profile
Address
2041 | W | 32 | ST
Street Status
PAVED | SIDEWALK
School District
CITY OF ERIE SCHOOL
Acreage
0.0921
Classification
R
Land Use Code
SINGLE FAMILY
Legal Description
2041 W 32 ST 70 X 100
Square Feet
780
Topo
ROLLING
Utility
ALL PUBLIC
Zoning
Please contact your municipal zoning officer
Deed Book
1328
Deed Page
0665
2026 Tax Values
Land Value / Taxable
16,200 / 16,200.00
Building Value / Taxable
37,600 / 37,600.00
Total Value / Taxable
53,800 / 53,800.00
Clean & Green
Inactive
Homestead Status
Inactive
Farmstead Status
Inactive
Lerta Amount
0
Lerta Expiration Year
0
Residential Data
Card 1
Style
BUNGALOW
Basement
FULL
Year Built
1918
Exterior Wall
ALUMINUM/VINYL
Total Living Area
780
Full Baths
1
Half Baths
0
Fuel Type
GAS
Heating
CENTRAL
Heating System
FORCED AIR
Stories
1.0
Total Bedrooms
2
Total Family Rooms
0
Total Rooms
4
Fireplaces
0
Other Buildings & Yards
Description
Built
Width
Length
Area
FRAME UTILITY SHED
2014
8
16
128
Sales History
Sale Date
Type
Price
Book / Page
Other Info
5/16/2006
LAND & BUILDING
0
1328 / 0665
QUIT CLAIM DEED
6/5/2003
LAND & BUILDING
61880
1020 / 0183
DEED
9/20/2000
LAND & BUILDING
43000
727 / 1514
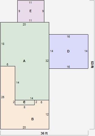
Parcel Sketches
Residential Card 1
A
MAIN
556 square feet
B
MA_PT CONC/MAS PATIO
308 square feet
C
EFP ENCL FRAME PORCH
16 square feet
D
1S FR ONE STORY FRAME
224 square feet
E
EFP ENCL FRAME PORCH
99 square feet
Parcel Images
Please note:
this tab is for informational purposes only and may not show all delinquencies, see the Taxes tab for more accurate delinquent taxes due.