Elected Officials
Courts
Departments
Initiatives
Open Government
About
Login / Register
Home
/
Property & Tax Records
/
Property Records
/
Property & Tax Search
/
Parcel Profile
/
Print View
Search for Another Parcel
Parcel Profile
Historical Card
Sketches
Photos
Tax Map
Taxes
Print View
Print This Page
Address: 3404 POST AVE
Parcel: 19061060020200
Parcel Profile
Address
3404 | POST | AVE
Street Status
PAVED | SIDEWALK
School District
CITY OF ERIE SCHOOL
Acreage
0.2296
Classification
R
Land Use Code
SINGLE FAMILY
Legal Description
3404 POST AVE 100 X 100
Square Feet
1402
Topo
LEVEL
Utility
ALL PUBLIC
Zoning
Please contact your municipal zoning officer
Deed Book
2015
Deed Page
018338
2026 Tax Values
Land Value / Taxable
29,200 / 29,200.00
Building Value / Taxable
61,700 / 61,700.00
Total Value / Taxable
90,900 / 90,900.00
Clean & Green
Inactive
Homestead Status
Active
Farmstead Status
Inactive
Lerta Amount
0
Lerta Expiration Year
0
Residential Data
Card 1
Style
BUNGALOW
Basement
FULL
Year Built
1915
Exterior Wall
ALUMINUM/VINYL
Total Living Area
1402
Full Baths
1
Half Baths
0
Fuel Type
GAS
Heating
CENTRAL
Heating System
FORCED AIR
Stories
1.0
Total Bedrooms
2
Total Family Rooms
0
Total Rooms
4
Fireplaces
0
Other Buildings & Yards
No OBY Data Found
Sales History
Sale Date
Type
Price
Book / Page
Other Info
8/21/2015
LAND & BUILDING
0
2015 / 018338
DEED
5/28/1965
0
0917 / 0371
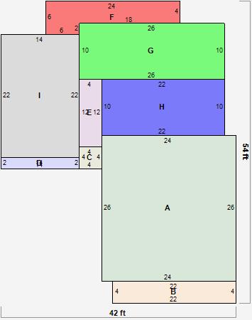
Parcel Sketches
Residential Card 1
A
MAIN
624 square feet
B
OFP OPEN FRAME PORCH
88 square feet
C
OFP OPEN FRAME PORCH
16 square feet
D
EFP ENCL FRAME PORCH
28 square feet
E
WDDCK WOOD DECKS
48 square feet
F
WDDCK WOOD DECKS
108 square feet
G
OFP OPEN FRAME PORCH
260 square feet
H
UNFIN BSMT BASEMENT UNFINISHED 1S FR ONE STORY FRAME
220 square feet
I
1S FR ONE STORY FRAME
308 square feet
Parcel Images
Please note:
this tab is for informational purposes only and may not show all delinquencies, see the Taxes tab for more accurate delinquent taxes due.