Elected Officials
Courts
Departments
Initiatives
Open Government
About
Login / Register
Home
/
Property & Tax Records
/
Property Records
/
Property & Tax Search
/
Parcel Profile
/
Print View
Search for Another Parcel
Parcel Profile
Historical Card
Sketches
Photos
Tax Map
Taxes
Print View
Print This Page
Address: 1225 W 24 ST
Parcel: 19062002020700
Parcel Profile
Address
1225 | W | 24 | ST
Street Status
PAVED
School District
CITY OF ERIE SCHOOL
Acreage
0.1647
Classification
R
Land Use Code
TWO FAMILY
Legal Description
1225 W 24TH ST 90 X 79.83 IRR
Square Feet
1258
Topo
ABOVE STREET
Utility
ALL PUBLIC
Zoning
Please contact your municipal zoning officer
Deed Book
2013
Deed Page
004328
2025 Tax Values
Land Value / Taxable
11,700 / 11,700.00
Building Value / Taxable
53,500 / 53,500.00
Total Value / Taxable
65,200 / 65,200.00
Clean & Green
Inactive
Homestead Status
Active
Farmstead Status
Inactive
Lerta Amount
0
Lerta Expiration Year
0
Residential Data
Card 1
Style
CONVENTIONAL
Basement
FULL
Year Built
1888
Exterior Wall
FRAME
Total Living Area
1258
Full Baths
2
Half Baths
0
Fuel Type
GAS
Heating
CENTRAL
Heating System
FORCED AIR
Stories
2.0
Total Bedrooms
3
Total Family Rooms
0
Total Rooms
7
Fireplaces
0
Other Buildings & Yards
Description
Built
Width
Length
Area
FRAME OR CB DETACHED GARAGE
1947
12
22
264
Sales History
Sale Date
Type
Price
Book / Page
Other Info
2/22/2013
LAND & BUILDING
67000
2013 / 004328
DEED
10/31/1995
0
0410 / 1433
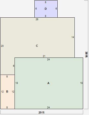
Parcel Sketches
Residential Card 1
A
MAIN
432 square feet
B
OFP OPEN FRAME PORCH
60 square feet
C
1S FR ONE STORY FRAME
394 square feet
D
EFP ENCL FRAME PORCH
48 square feet
Parcel Images