Elected Officials
Courts
Departments
Initiatives
Open Government
About
Login / Register
Home
/
Property & Tax Records
/
Property Records
/
Property & Tax Search
/
Parcel Profile
/
Print View
Search for Another Parcel
Parcel Profile
Historical Card
Sketches
Photos
Tax Map
Taxes
Print View
Print This Page
Address: 1336 W 24 ST
Parcel: 19062003010800
Parcel Profile
Address
1336 | W | 24 | ST
Street Status
PAVED | SIDEWALK
School District
CITY OF ERIE SCHOOL
Acreage
0.1210
Classification
R
Land Use Code
SINGLE FAMILY
Legal Description
1336 W 24 ST 41X128.5
Square Feet
1488
Topo
LEVEL
Utility
ALL PUBLIC
Zoning
Please contact your municipal zoning officer
Deed Book
2019
Deed Page
006224
2025 Tax Values
Land Value / Taxable
11,100 / 11,100.00
Building Value / Taxable
44,080 / 44,080.00
Total Value / Taxable
55,180 / 55,180.00
Clean & Green
Inactive
Homestead Status
Active
Farmstead Status
Inactive
Lerta Amount
0
Lerta Expiration Year
0
Residential Data
Card 1
Style
OLD STYLE
Basement
FULL
Year Built
1924
Exterior Wall
COMPOSITION
Total Living Area
1488
Full Baths
1
Half Baths
1
Fuel Type
GAS
Heating
CENTRAL A/C
Heating System
FORCED AIR
Stories
2.0
Total Bedrooms
3
Total Family Rooms
0
Total Rooms
6
Fireplaces
0
Other Buildings & Yards
Description
Built
Width
Length
Area
FRAME OR CB DETACHED GARAGE
1950
14
20
280
Sales History
Sale Date
Type
Price
Book / Page
Other Info
4/9/2019
LAND & BUILDING
0
2019 / 006224
QUIT CLAIM DEED
5/21/2008
LAND & BUILDING
70000
1496 / 1009
DEED
2/12/2008
LAND & BUILDING
55825
1475 / 2169
SHERIFF'S DED
11/4/1994
0
0361 / 1217
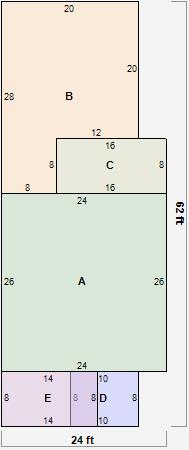
Parcel Sketches
Residential Card 1
A
MAIN
624 square feet
B
WDDCK WOOD DECKS
464 square feet
C
1S FR ONE STORY FRAME
128 square feet
D
UNFIN BSMT BASEMENT UNFINISHED OFP OPEN FRAME PORCH
80 square feet
E
UNFIN BSMT BASEMENT UNFINISHED 1S FR ONE STORY FRAME
112 square feet
Parcel Images