Elected Officials
Courts
Departments
Initiatives
Open Government
About
Login / Register
Home
/
Property & Tax Records
/
Property Records
/
Property & Tax Search
/
Parcel Profile
/
Print View
Search for Another Parcel
Parcel Profile
Historical Card
Sketches
Photos
Tax Map
Taxes
Print View
Print This Page
Address: 1315 W 23 ST
Parcel: 19062003011600
Parcel Profile
Address
1315 | W | 23 | ST
Street Status
PAVED | SIDEWALK
School District
CITY OF ERIE SCHOOL
Acreage
0.3750
Classification
R
Land Use Code
SINGLE FAMILY
Legal Description
1315 W 23 ST 174 X 93.98 IRR
Square Feet
1976
Topo
LEVEL
Utility
ALL PUBLIC
Zoning
Please contact your municipal zoning officer
Deed Book
1004
Deed Page
1159
2026 Tax Values
Land Value / Taxable
14,100 / 14,100.00
Building Value / Taxable
51,900 / 51,900.00
Total Value / Taxable
66,000 / 66,000.00
Clean & Green
Inactive
Homestead Status
Active
Farmstead Status
Inactive
Lerta Amount
0
Lerta Expiration Year
0
Residential Data
Card 1
Style
CONVENTIONAL
Basement
FULL
Year Built
1938
Exterior Wall
ALUMINUM/VINYL
Total Living Area
1976
Full Baths
2
Half Baths
0
Fuel Type
GAS
Heating
CENTRAL A/C
Heating System
FORCED AIR
Stories
2.0
Total Bedrooms
6
Total Family Rooms
0
Total Rooms
9
Fireplaces
0
Other Buildings & Yards
Description
Built
Width
Length
Area
FRAME OR CB DETACHED GARAGE
1938
20
22
440
1S LEAN TO
1950
6
22
132
Sales History
Sale Date
Type
Price
Book / Page
Other Info
4/29/2003
LAND & BUILDING
0
1004 / 1159
AFFIDAVIT
11/9/1998
0
0598 / 2207
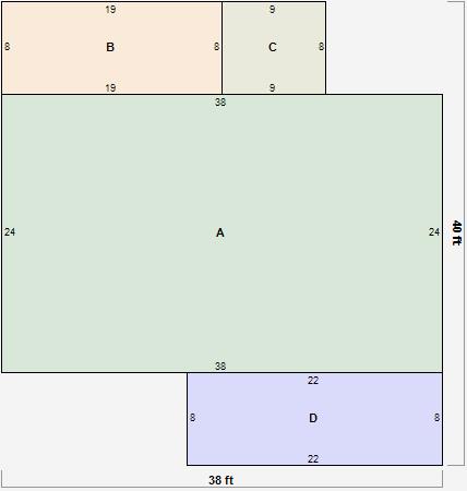
Parcel Sketches
Residential Card 1
A
MAIN
912 square feet
B
1S FR ONE STORY FRAME
152 square feet
C
OFP OPEN FRAME PORCH
72 square feet
D
UNFIN BSMT BASEMENT UNFINISHED OFP OPEN FRAME PORCH
176 square feet
Parcel Images
Please note:
this tab is for informational purposes only and may not show all delinquencies, see the Taxes tab for more accurate delinquent taxes due.