Elected Officials
Courts
Departments
Initiatives
Open Government
About
Login / Register
Home
/
Property & Tax Records
/
Property Records
/
Property & Tax Search
/
Parcel Profile
/
Print View
Search for Another Parcel
Parcel Profile
Historical Card
Sketches
Photos
Tax Map
Taxes
Print View
Print This Page
Address: 1350 W 25 ST
Parcel: 19062004022200
Parcel Profile
Address
1350 | W | 25 | ST
Street Status
PAVED
School District
CITY OF ERIE SCHOOL
Acreage
0.2432
Classification
R
Land Use Code
SINGLE FAMILY
Legal Description
1350 W 25 ST 80 X 132.41
Square Feet
1213
Topo
LEVEL
Utility
ALL PUBLIC
Zoning
Please contact your municipal zoning officer
Deed Book
2023
Deed Page
016520
2026 Tax Values
Land Value / Taxable
12,600 / 12,600.00
Building Value / Taxable
73,550 / 73,550.00
Total Value / Taxable
86,150 / 86,150.00
Clean & Green
Inactive
Homestead Status
Active
Farmstead Status
Inactive
Lerta Amount
0
Lerta Expiration Year
0
Residential Data
Card 1
Style
BUNGALOW
Basement
FULL
Year Built
1919
Exterior Wall
FRAME
Total Living Area
1213
Full Baths
2
Half Baths
0
Fuel Type
GAS
Heating
CENTRAL A/C
Heating System
FORCED AIR
Stories
1.0
Total Bedrooms
3
Total Family Rooms
0
Total Rooms
6
Fireplaces
1
Other Buildings & Yards
Description
Built
Width
Length
Area
FRAME OR CB DETACHED GARAGE
1984
16
20
320
Sales History
Sale Date
Type
Price
Book / Page
Other Info
9/29/2023
LAND & BUILDING
150000
2023 / 016520
SPECIAL WARRANTY DEED
8/16/2012
LAND & BUILDING
84000
2012 / 022269
SPECIAL WARRANTY DEED
10/13/2008
LAND & BUILDING
85500
1525 / 0892
DEED
1/2/1980
0
1375 / 0198
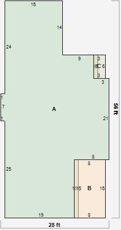
Parcel Sketches
Residential Card 1
A
MAIN
1213 square feet
B
OFP OPEN FRAME PORCH
120 square feet
C
OFP OPEN FRAME PORCH
18 square feet
Parcel Images
Please note:
this tab is for informational purposes only and may not show all delinquencies, see the Taxes tab for more accurate delinquent taxes due.