Elected Officials
Courts
Departments
Initiatives
Open Government
About
Login / Register
Home
/
Property & Tax Records
/
Property Records
/
Property & Tax Search
/
Parcel Profile
/
Print View
Search for Another Parcel
Parcel Profile
Historical Card
Sketches
Photos
Tax Map
Taxes
Print View
Print This Page
Address: 1716 W 26 ST
Parcel: 19062009010000
Parcel Profile
Address
1716 | W | 26 | ST
Street Status
PAVED
School District
CITY OF ERIE SCHOOL
Acreage
0.1879
Classification
R
Land Use Code
SINGLE FAMILY
Legal Description
1716 W 26TH ST 52X157.38
Square Feet
1568
Topo
LEVEL
Utility
ALL PUBLIC
Zoning
Please contact your municipal zoning officer
Deed Book
2024
Deed Page
002814
2025 Tax Values
Land Value / Taxable
18,700 / 18,700.00
Building Value / Taxable
65,200 / 65,200.00
Total Value / Taxable
83,900 / 83,900.00
Clean & Green
Inactive
Homestead Status
Inactive
Farmstead Status
Inactive
Lerta Amount
0
Lerta Expiration Year
0
Residential Data
Card 1
Style
OLD STYLE
Basement
FULL
Year Built
1923
Exterior Wall
BRICK
Total Living Area
1568
Full Baths
1
Half Baths
2
Fuel Type
GAS
Heating
CENTRAL
Heating System
FORCED AIR
Stories
2.0
Total Bedrooms
3
Total Family Rooms
0
Total Rooms
7
Fireplaces
1
Other Buildings & Yards
Description
Built
Width
Length
Area
FRAME OR CB DETACHED GARAGE
1923
20
20
400
Sales History
Sale Date
Type
Price
Book / Page
Other Info
2/23/2024
LAND & BUILDING
104000
2024 / 002814
SPECIAL WARRANTY DEED
9/11/2020
LAND & BUILDING
0
2020 / 018313
QUIT CLAIM DEED
4/30/2018
LAND & BUILDING
0
2018 / 008080
FIDUCIARY DEED
1/1/1966
0
935 / 499
Parcel Sketches
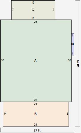
Residential Card 1
A
MAIN
780 square feet
B
OMP OPEN MASONRY PORCH
216 square feet
C
EMP ENCL MASONRY PORCH EFP ENCL FRAME PORCH
112 square feet
D
UNFIN BSMT BASEMENT UNFINISHED MABAY MASONRY BAY
8 square feet
Parcel Images