Elected Officials
Courts
Departments
Initiatives
Open Government
About
Login / Register
Home
/
Property & Tax Records
/
Property Records
/
Property & Tax Search
/
Parcel Profile
/
Print View
Search for Another Parcel
Parcel Profile
Historical Card
Sketches
Photos
Tax Map
Taxes
Print View
Print This Page
Address: 2412 HAYBARGER AVE
Parcel: 19062009020200
Parcel Profile
Address
2412 | HAYBARGER | AVE
Street Status
PAVED
School District
CITY OF ERIE SCHOOL
Acreage
0.1659
Classification
R
Land Use Code
SINGLE FAMILY
Legal Description
2412 HAYBARGER AVE 67.55 X 107
Square Feet
1488
Topo
LEVEL
Utility
ALL PUBLIC
Zoning
Please contact your municipal zoning officer
Deed Book
2024
Deed Page
015779
2026 Tax Values
Land Value / Taxable
18,400 / 18,400.00
Building Value / Taxable
57,200 / 57,200.00
Total Value / Taxable
75,600 / 75,600.00
Clean & Green
Inactive
Homestead Status
Active
Farmstead Status
Inactive
Lerta Amount
0
Lerta Expiration Year
0
Residential Data
Card 1
Style
OLD STYLE
Basement
FULL
Year Built
1910
Exterior Wall
ALUMINUM/VINYL
Total Living Area
1488
Full Baths
1
Half Baths
0
Fuel Type
GAS
Heating
CENTRAL
Heating System
FORCED AIR
Stories
2.0
Total Bedrooms
3
Total Family Rooms
1
Total Rooms
6
Fireplaces
0
Other Buildings & Yards
No OBY Data Found
Sales History
Sale Date
Type
Price
Book / Page
Other Info
9/30/2024
LAND & BUILDING
0
2024 / 015779
QUIT CLAIM DEED
4/28/2014
LAND & BUILDING
92000
2014 / 007933
DEED
10/31/1990
0
0142 / 0462
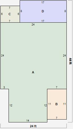
Parcel Sketches
Residential Card 1
A
MAIN
744 square feet
B
OFP OPEN FRAME PORCH
77 square feet
C
EFP ENCL FRAME PORCH
42 square feet
D
EFP ENCL FRAME PORCH
136 square feet
Parcel Images
Please note:
this tab is for informational purposes only and may not show all delinquencies, see the Taxes tab for more accurate delinquent taxes due.