Elected Officials
Courts
Departments
Initiatives
Open Government
About
Login / Register
Home
/
Property & Tax Records
/
Property Records
/
Property & Tax Search
/
Parcel Profile
/
Print View
Search for Another Parcel
Parcel Profile
Historical Card
Sketches
Photos
Tax Map
Taxes
Print View
Print This Page
Address: 1838 W 24 ST
Parcel: 19062010010800
Parcel Profile
Address
1838 | W | 24 | ST
Street Status
PAVED
School District
CITY OF ERIE SCHOOL
Acreage
0.1240
Classification
R
Land Use Code
SINGLE FAMILY
Legal Description
1838 W 24TH ST 4OX135
Square Feet
1434
Topo
LEVEL
Utility
ALL PUBLIC
Zoning
Please contact your municipal zoning officer
Deed Book
1599
Deed Page
0526
2026 Tax Values
Land Value / Taxable
17,500 / 17,500.00
Building Value / Taxable
57,900 / 57,900.00
Total Value / Taxable
75,400 / 75,400.00
Clean & Green
Inactive
Homestead Status
Active
Farmstead Status
Inactive
Lerta Amount
0.00
Lerta Expiration Year
2016
Residential Data
Card 1
Style
OLD STYLE
Basement
FULL
Year Built
1928
Exterior Wall
MASONRY & FRAME
Total Living Area
1434
Full Baths
1
Half Baths
0
Fuel Type
GAS
Heating
CENTRAL
Heating System
FORCED AIR
Stories
2.0
Total Bedrooms
3
Total Family Rooms
0
Total Rooms
7
Fireplaces
0
Other Buildings & Yards
Description
Built
Width
Length
Area
FRAME OR CB DETACHED GARAGE
1930
11
18
198
Sales History
Sale Date
Type
Price
Book / Page
Other Info
10/1/1985
0
1599 / 0526
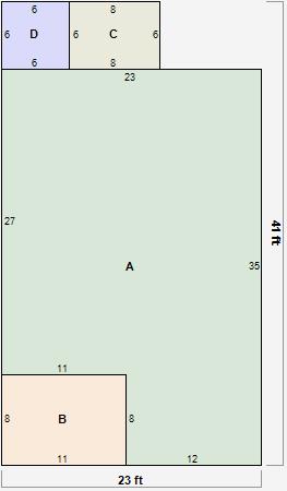
Parcel Sketches
Residential Card 1
A
MAIN
717 square feet
B
OMP OPEN MASONRY PORCH
88 square feet
C
EFP ENCL FRAME PORCH
48 square feet
D
WDDCK WOOD DECKS
36 square feet
Parcel Images
Please note:
this tab is for informational purposes only and may not show all delinquencies, see the Taxes tab for more accurate delinquent taxes due.