Elected Officials
Courts
Departments
Initiatives
Open Government
About
Login / Register
Home
/
Property & Tax Records
/
Property Records
/
Property & Tax Search
/
Parcel Profile
/
Print View
Search for Another Parcel
Parcel Profile
Historical Card
Sketches
Photos
Tax Map
Taxes
Print View
Print This Page
Address: 1117 W 28TH ST
Parcel: 19062018010800
Parcel Profile
Address
1117 | W | 28TH | ST
Street Status
PAVED
School District
CITY OF ERIE SCHOOL
Acreage
0.1240
Classification
R
Land Use Code
SINGLE FAMILY
Legal Description
1117 W 28TH ST 4OX135
Square Feet
1786
Topo
LEVEL
Utility
ALL PUBLIC
Zoning
Please contact your municipal zoning officer
Deed Book
2017
Deed Page
022740
2026 Tax Values
Land Value / Taxable
17,500 / 17,500.00
Building Value / Taxable
60,300 / 60,300.00
Total Value / Taxable
77,800 / 77,800.00
Clean & Green
Inactive
Homestead Status
Active
Farmstead Status
Inactive
Lerta Amount
0
Lerta Expiration Year
0
Residential Data
Card 1
Style
CAPE
Basement
FULL
Year Built
1900
Exterior Wall
BRICK
Total Living Area
1786
Full Baths
1
Half Baths
0
Fuel Type
GAS
Heating
CENTRAL
Heating System
HOT WATER
Stories
1.0
Total Bedrooms
4
Total Family Rooms
1
Total Rooms
7
Fireplaces
0
Other Buildings & Yards
Description
Built
Width
Length
Area
FRAME OR CB DETACHED GARAGE
1980
14
20
280
Sales History
Sale Date
Type
Price
Book / Page
Other Info
10/16/2017
LAND & BUILDING
89000
2017 / 022740
WARRANTY/SURVIVORSHIP DEED
4/8/2003
LAND & BUILDING
67000
996 / 172
4/19/1990
0
0119 / 0400
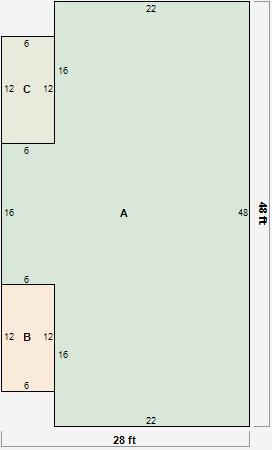
Parcel Sketches
Residential Card 1
A
MAIN
1152 square feet
B
EFP ENCL FRAME PORCH
72 square feet
C
EFP ENCL FRAME PORCH
72 square feet
Parcel Images
Please note:
this tab is for informational purposes only and may not show all delinquencies, see the Taxes tab for more accurate delinquent taxes due.