Elected Officials
Courts
Departments
Initiatives
Open Government
About
Login / Register
Home
/
Property & Tax Records
/
Property Records
/
Property & Tax Search
/
Parcel Profile
/
Print View
Search for Another Parcel
Parcel Profile
Historical Card
Sketches
Photos
Tax Map
Taxes
Print View
Print This Page
Address: 1127 W 29TH ST
Parcel: 19062019031200
Parcel Profile
Address
1127 | W | 29TH | ST
Street Status
PAVED
School District
CITY OF ERIE SCHOOL
Acreage
0.1395
Classification
R
Land Use Code
SINGLE FAMILY
Legal Description
1127 W 29TH ST 45X135
Square Feet
1464
Topo
LEVEL
Utility
ALL PUBLIC
Zoning
Please contact your municipal zoning officer
Deed Book
1588
Deed Page
0783
2026 Tax Values
Land Value / Taxable
18,000 / 18,000.00
Building Value / Taxable
81,690 / 81,690.00
Total Value / Taxable
99,690 / 99,690.00
Clean & Green
Inactive
Homestead Status
Inactive
Farmstead Status
Inactive
Lerta Amount
0
Lerta Expiration Year
0
Residential Data
Card 1
Style
OLD STYLE
Basement
FULL
Year Built
1904
Exterior Wall
ALUMINUM/VINYL
Total Living Area
1464
Full Baths
1
Half Baths
1
Fuel Type
GAS
Heating
CENTRAL A/C
Heating System
FORCED AIR
Stories
2.0
Total Bedrooms
3
Total Family Rooms
0
Total Rooms
6
Fireplaces
0
Other Buildings & Yards
Description
Built
Width
Length
Area
FRAME OR CB DETACHED GARAGE
1904
24
30
720
Sales History
Sale Date
Type
Price
Book / Page
Other Info
9/4/2009
LAND & BUILDING
101900
1588 / 0783
WARRANTY/SURVIVORSHIP DEED
9/4/2001
LAND & BUILDING
85500
806 / 1547
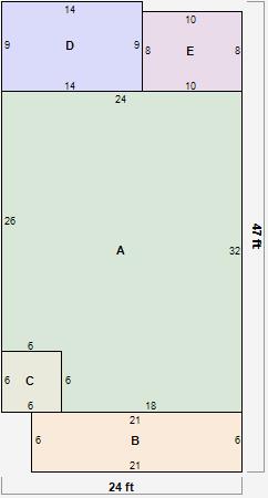
Parcel Sketches
Residential Card 1
A
MAIN
732 square feet
B
OFP OPEN FRAME PORCH
126 square feet
C
UNFIN BSMT BASEMENT UNFINISHED EFP ENCL FRAME PORCH
36 square feet
D
EFP ENCL FRAME PORCH
126 square feet
E
UNFIN BSMT BASEMENT UNFINISHED EFP ENCL FRAME PORCH
80 square feet
Parcel Images
Please note:
this tab is for informational purposes only and may not show all delinquencies, see the Taxes tab for more accurate delinquent taxes due.