Elected Officials
Courts
Departments
Initiatives
Open Government
About
Login / Register
Home
/
Property & Tax Records
/
Property Records
/
Property & Tax Search
/
Parcel Profile
/
Print View
Search for Another Parcel
Parcel Profile
Historical Card
Sketches
Photos
Tax Map
Taxes
Print View
Print This Page
Address: 1151 W 29TH ST
Parcel: 19062019032000
Parcel Profile
Address
1151 | W | 29TH | ST
Street Status
PAVED
School District
CITY OF ERIE SCHOOL
Acreage
0.1240
Classification
R
Land Use Code
SINGLE FAMILY
Legal Description
1151 W 29TH ST 40 X 135
Square Feet
1280
Topo
LEVEL
Utility
ALL PUBLIC
Zoning
Please contact your municipal zoning officer
Deed Book
0764
Deed Page
0136
2026 Tax Values
Land Value / Taxable
17,500 / 17,500.00
Building Value / Taxable
49,000 / 49,000.00
Total Value / Taxable
66,500 / 66,500.00
Clean & Green
Inactive
Homestead Status
Active
Farmstead Status
Inactive
Lerta Amount
0
Lerta Expiration Year
0
Residential Data
Card 1
Style
CONVENTIONAL
Basement
PART
Year Built
1878
Exterior Wall
ALUMINUM/VINYL
Total Living Area
1280
Full Baths
1
Half Baths
0
Fuel Type
GAS
Heating
CENTRAL A/C
Heating System
FORCED AIR
Stories
2.0
Total Bedrooms
3
Total Family Rooms
1
Total Rooms
6
Fireplaces
0
Other Buildings & Yards
No OBY Data Found
Sales History
Sale Date
Type
Price
Book / Page
Other Info
9/27/1957
0
0764 / 0136
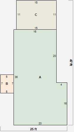
Parcel Sketches
Residential Card 1
A
MAIN
640 square feet
B
OFP OPEN FRAME PORCH
35 square feet
C
EFP ENCL FRAME PORCH
165 square feet
Parcel Images