Elected Officials
Courts
Departments
Initiatives
Open Government
About
Login / Register
Home
/
Property & Tax Records
/
Property Records
/
Property & Tax Search
/
Parcel Profile
/
Print View
Search for Another Parcel
Parcel Profile
Historical Card
Sketches
Photos
Tax Map
Taxes
Print View
Print This Page
Address: 1144 W 30TH ST
Parcel: 19062019033100
Parcel Profile
Address
1144 | W | 30TH | ST
Street Status
PAVED
School District
CITY OF ERIE SCHOOL
Acreage
0.1387
Classification
R
Land Use Code
SINGLE FAMILY
Legal Description
1144 W 30TH ST 44.5 X 135
Square Feet
1512
Topo
LEVEL
Utility
ALL PUBLIC
Zoning
Please contact your municipal zoning officer
Deed Book
2021
Deed Page
12142021
2026 Tax Values
Land Value / Taxable
18,000 / 18,000.00
Building Value / Taxable
62,800 / 62,800.00
Total Value / Taxable
80,800 / 80,800.00
Clean & Green
Inactive
Homestead Status
Inactive
Farmstead Status
Inactive
Lerta Amount
0
Lerta Expiration Year
0
Residential Data
Card 1
Style
CONVENTIONAL
Basement
FULL
Year Built
1923
Exterior Wall
BRICK
Total Living Area
1512
Full Baths
1
Half Baths
0
Fuel Type
GAS
Heating
CENTRAL
Heating System
FORCED AIR
Stories
2.0
Total Bedrooms
3
Total Family Rooms
1
Total Rooms
7
Fireplaces
0
Other Buildings & Yards
Description
Built
Width
Length
Area
FRAME OR CB DETACHED GARAGE
1923
10
20
200
Sales History
Sale Date
Type
Price
Book / Page
Other Info
12/14/2021
LAND & BUILDING
0
2021 / 12142021
SPECIAL WARRANTY DEED
1/22/2019
LAND & BUILDING
0
2019 / 001207
QUIT CLAIM DEED
11/27/1973
0
1110 / 0121
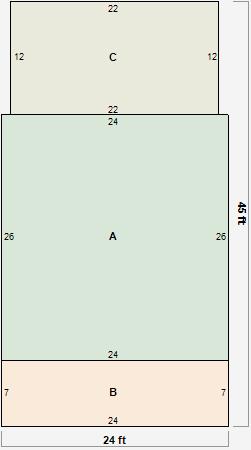
Parcel Sketches
Residential Card 1
A
MAIN
624 square feet
B
UNFIN BSMT BASEMENT UNFINISHED OMP OPEN MASONRY PORCH
168 square feet
C
1S FR ONE STORY FRAME
264 square feet
Parcel Images
Please note:
this tab is for informational purposes only and may not show all delinquencies, see the Taxes tab for more accurate delinquent taxes due.