Elected Officials
Courts
Departments
Initiatives
Open Government
About
Login / Register
Home
/
Property & Tax Records
/
Property Records
/
Property & Tax Search
/
Parcel Profile
/
Print View
Search for Another Parcel
Parcel Profile
Historical Card
Sketches
Photos
Tax Map
Taxes
Print View
Print This Page
Address: 1215 W 28 ST
Parcel: 19062020010800
Parcel Profile
Address
1215 | W | 28 | ST
Street Status
PAVED
School District
CITY OF ERIE SCHOOL
Acreage
0.0643
Classification
R
Land Use Code
SINGLE FAMILY
Legal Description
1215 W 28 ST 40X70
Square Feet
1235
Topo
LEVEL
Utility
ALL PUBLIC
Zoning
Please contact your municipal zoning officer
Deed Book
0980
Deed Page
0385
2026 Tax Values
Land Value / Taxable
15,100 / 15,100.00
Building Value / Taxable
48,700 / 48,700.00
Total Value / Taxable
63,800 / 63,800.00
Clean & Green
Inactive
Homestead Status
Active
Farmstead Status
Inactive
Lerta Amount
0
Lerta Expiration Year
0
Residential Data
Card 1
Style
OLD STYLE
Basement
FULL
Year Built
1914
Exterior Wall
ALUMINUM/VINYL
Total Living Area
1235
Full Baths
1
Half Baths
0
Fuel Type
GAS
Heating
CENTRAL
Heating System
FORCED AIR
Stories
1.5
Total Bedrooms
2
Total Family Rooms
0
Total Rooms
6
Fireplaces
1
Other Buildings & Yards
No OBY Data Found
Sales History
Sale Date
Type
Price
Book / Page
Other Info
2/25/2003
LAND & BUILDING
59000
0980 / 0385
9/1/1983
0
1507 / 0564
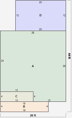
Parcel Sketches
Residential Card 1
A
MAIN
676 square feet
B
EFP ENCL FRAME PORCH
76 square feet
C
EFP ENCL FRAME PORCH 1S FR ONE STORY FRAME
52 square feet
D
WDDCK WOOD DECKS
240 square feet
Parcel Images
Please note:
this tab is for informational purposes only and may not show all delinquencies, see the Taxes tab for more accurate delinquent taxes due.