Elected Officials
Courts
Departments
Initiatives
Open Government
About
Login / Register
Home
/
Property & Tax Records
/
Property Records
/
Property & Tax Search
/
Parcel Profile
/
Print View
Search for Another Parcel
Parcel Profile
Historical Card
Sketches
Photos
Tax Map
Taxes
Print View
Print This Page
Address: 1203 W 27 ST
Parcel: 19062020020200
Parcel Profile
Address
1203 | W | 27 | ST
Street Status
PAVED
School District
CITY OF ERIE SCHOOL
Acreage
0.1240
Classification
R
Land Use Code
SINGLE FAMILY
Legal Description
1203 W 27 ST 40 X 135
Square Feet
1257
Topo
LEVEL
Utility
ALL PUBLIC
Zoning
Please contact your municipal zoning officer
Deed Book
2019
Deed Page
024472
2026 Tax Values
Land Value / Taxable
17,500 / 17,500.00
Building Value / Taxable
60,370 / 60,370.00
Total Value / Taxable
77,870 / 77,870.00
Clean & Green
Inactive
Homestead Status
Active
Farmstead Status
Inactive
Lerta Amount
0
Lerta Expiration Year
0
Residential Data
Card 1
Style
OLD STYLE
Basement
FULL
Year Built
1916
Exterior Wall
COMPOSITION
Total Living Area
1257
Full Baths
1
Half Baths
0
Fuel Type
GAS
Heating
CENTRAL
Heating System
FORCED AIR
Stories
2.0
Total Bedrooms
3
Total Family Rooms
0
Total Rooms
7
Fireplaces
0
Other Buildings & Yards
Description
Built
Width
Length
Area
FRAME OR CB DETACHED GARAGE
1996
16
32
512
Sales History
Sale Date
Type
Price
Book / Page
Other Info
11/26/2019
LAND & BUILDING
87900
2019 / 024472
SPECIAL WARRANTY DEED
8/21/2012
LAND & BUILDING
95000
2012 / 022735
SPECIAL WARRANTY DEED
1/22/2004
LAND & BUILDING
65500
1102 / 1329
WARRANTY/SURVIVORSHIP DEED
7/21/1998
0
0575 / 0906
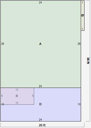
Parcel Sketches
Residential Card 1
A
MAIN
624 square feet
B
EFP ENCL FRAME PORCH
50 square feet
C
FRBAY FRAME BAY
9 square feet
D
OFP OPEN FRAME PORCH
240 square feet
Parcel Images
Please note:
this tab is for informational purposes only and may not show all delinquencies, see the Taxes tab for more accurate delinquent taxes due.