Elected Officials
Courts
Departments
Initiatives
Open Government
About
Login / Register
Home
/
Property & Tax Records
/
Property Records
/
Property & Tax Search
/
Parcel Profile
/
Print View
Search for Another Parcel
Parcel Profile
Historical Card
Sketches
Photos
Tax Map
Taxes
Print View
Print This Page
Address: 1357 W 31 ST
Parcel: 19062023011600
Parcel Profile
Address
1357 | W | 31 | ST
Street Status
PAVED
School District
CITY OF ERIE SCHOOL
Acreage
0.0918
Classification
R
Land Use Code
SINGLE FAMILY
Legal Description
1357 W 31 ST 40 X 105.215
Square Feet
924
Topo
LEVEL
Utility
ALL PUBLIC
Zoning
Please contact your municipal zoning officer
Deed Book
2024
Deed Page
012047
2026 Tax Values
Land Value / Taxable
16,200 / 16,200.00
Building Value / Taxable
25,700 / 25,700.00
Total Value / Taxable
41,900 / 41,900.00
Clean & Green
Inactive
Homestead Status
Inactive
Farmstead Status
Inactive
Lerta Amount
0
Lerta Expiration Year
0
Residential Data
Card 1
Style
BUNGALOW
Basement
FULL
Year Built
1918
Exterior Wall
COMPOSITION
Total Living Area
924
Full Baths
1
Half Baths
0
Fuel Type
GAS
Heating
CENTRAL
Heating System
FORCED AIR
Stories
1.0
Total Bedrooms
2
Total Family Rooms
0
Total Rooms
6
Fireplaces
0
Other Buildings & Yards
No OBY Data Found
Sales History
Sale Date
Type
Price
Book / Page
Other Info
8/2/2024
LAND & BUILDING
40000
2024 / 012047
SPECIAL WARRANTY DEED
4/24/2008
LAND & BUILDING
0
1490 / 0950
QUIT CLAIM DEED
12/4/1989
0
0107 / 0331
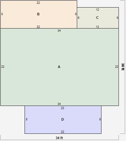
Parcel Sketches
Residential Card 1
A
MAIN
748 square feet
B
1S FR ONE STORY FRAME
176 square feet
C
FR UT FRAME UTILITY BUILDING
72 square feet
D
OFP OPEN FRAME PORCH
176 square feet
Parcel Images
Please note:
this tab is for informational purposes only and may not show all delinquencies, see the Taxes tab for more accurate delinquent taxes due.