Elected Officials
Courts
Departments
Initiatives
Open Government
About
Login / Register
Home
/
Property & Tax Records
/
Property Records
/
Property & Tax Search
/
Parcel Profile
/
Print View
Search for Another Parcel
Parcel Profile
Historical Card
Sketches
Photos
Tax Map
Taxes
Print View
Print This Page
Address: 1451 MAPLELEAF DR
Parcel: 19062024060600
Parcel Profile
Address
1451 | MAPLELEAF | DR
Street Status
PAVED | SIDEWALK
School District
CITY OF ERIE SCHOOL
Acreage
0.0870
Classification
R
Land Use Code
SINGLE FAMILY
Legal Description
1451 MAPLELEAF DR IRR
Square Feet
1152
Topo
LEVEL
Utility
ALL PUBLIC
Zoning
Please contact your municipal zoning officer
Deed Book
2022
Deed Page
008194
2026 Tax Values
Land Value / Taxable
16,000 / 16,000.00
Building Value / Taxable
57,120 / 57,120.00
Total Value / Taxable
73,120 / 73,120.00
Clean & Green
Inactive
Homestead Status
Inactive
Farmstead Status
Inactive
Lerta Amount
0
Lerta Expiration Year
0
Residential Data
Card 1
Style
OLD STYLE
Basement
FULL
Year Built
1928
Exterior Wall
FRAME
Total Living Area
1152
Full Baths
1
Half Baths
0
Fuel Type
GAS
Heating
CENTRAL
Heating System
FORCED AIR
Stories
2.0
Total Bedrooms
3
Total Family Rooms
0
Total Rooms
6
Fireplaces
1
Other Buildings & Yards
No OBY Data Found
Sales History
Sale Date
Type
Price
Book / Page
Other Info
4/18/2022
LAND & BUILDING
111000
2022 / 008194
SPECIAL WARRANTY DEED
6/27/2017
LAND & BUILDING
62900
2017 / 013408
DEED
1/26/2000
0
0684 / 1948
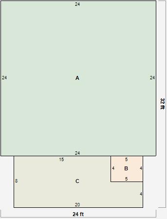
Parcel Sketches
Residential Card 1
A
MAIN
576 square feet
B
EFP ENCL FRAME PORCH
20 square feet
C
OFP OPEN FRAME PORCH
140 square feet
Parcel Images
Please note:
this tab is for informational purposes only and may not show all delinquencies, see the Taxes tab for more accurate delinquent taxes due.