Elected Officials
Courts
Departments
Initiatives
Open Government
About
Login / Register
Home
/
Property & Tax Records
/
Property Records
/
Property & Tax Search
/
Parcel Profile
/
Print View
Search for Another Parcel
Parcel Profile
Historical Card
Sketches
Photos
Tax Map
Taxes
Print View
Print This Page
Address: 3017 WASHINGTON AVE
Parcel: 19062025031700
Parcel Profile
Address
3017 | WASHINGTON | AVE
Street Status
PAVED | SIDEWALK
School District
CITY OF ERIE SCHOOL
Acreage
0.0786
Classification
R
Land Use Code
SINGLE FAMILY
Legal Description
3017 WASHINGTON AVE 33.33X103
Square Feet
1093
Topo
LEVEL
Utility
ALL PUBLIC
Zoning
Please contact your municipal zoning officer
Deed Book
0914
Deed Page
1159
2026 Tax Values
Land Value / Taxable
15,700 / 15,700.00
Building Value / Taxable
48,200 / 48,200.00
Total Value / Taxable
63,900 / 63,900.00
Clean & Green
Inactive
Homestead Status
Active
Farmstead Status
Inactive
Lerta Amount
0
Lerta Expiration Year
0
Residential Data
Card 1
Style
BUNGALOW
Basement
FULL
Year Built
1927
Exterior Wall
ALUMINUM/VINYL
Total Living Area
1093
Full Baths
1
Half Baths
0
Fuel Type
GAS
Heating
CENTRAL
Heating System
FORCED AIR
Stories
1.0
Total Bedrooms
3
Total Family Rooms
0
Total Rooms
7
Fireplaces
1
Other Buildings & Yards
Description
Built
Width
Length
Area
FRAME OR CB DETACHED GARAGE
1914
12
18
216
Sales History
Sale Date
Type
Price
Book / Page
Other Info
8/27/2002
LAND & BUILDING
57500
0914 / 1159
10/23/1998
0
0595 / 1211
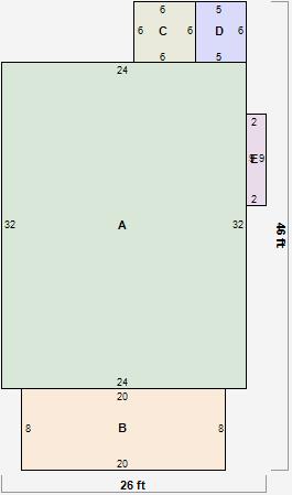
Parcel Sketches
Residential Card 1
A
MAIN
768 square feet
B
EFP ENCL FRAME PORCH
160 square feet
C
EFP ENCL FRAME PORCH
36 square feet
D
OFP OPEN FRAME PORCH
30 square feet
E
FRBAY FRAME BAY
18 square feet
Parcel Images
Please note:
this tab is for informational purposes only and may not show all delinquencies, see the Taxes tab for more accurate delinquent taxes due.