Elected Officials
Courts
Departments
Initiatives
Open Government
About
Login / Register
Home
/
Property & Tax Records
/
Property Records
/
Property & Tax Search
/
Parcel Profile
/
Print View
Search for Another Parcel
Parcel Profile
Historical Card
Sketches
Photos
Tax Map
Taxes
Print View
Print This Page
Address: 1417 W 29 ST
Parcel: 19062025040500
Parcel Profile
Address
1417 | W | 29 | ST
Street Status
PAVED
School District
CITY OF ERIE SCHOOL
Acreage
0.0964
Classification
R
Land Use Code
SINGLE FAMILY
Legal Description
1417 W 29 ST 40X105
Square Feet
1552
Topo
LEVEL
Utility
ALL PUBLIC
Zoning
Please contact your municipal zoning officer
Deed Book
0473
Deed Page
2086
2026 Tax Values
Land Value / Taxable
16,400 / 16,400.00
Building Value / Taxable
69,780 / 69,780.00
Total Value / Taxable
86,180 / 86,180.00
Clean & Green
Inactive
Homestead Status
Active
Farmstead Status
Inactive
Lerta Amount
0
Lerta Expiration Year
0
Residential Data
Card 1
Style
CONVENTIONAL
Basement
FULL
Year Built
1929
Exterior Wall
ALUMINUM/VINYL
Total Living Area
1552
Full Baths
1
Half Baths
0
Fuel Type
GAS
Heating
CENTRAL
Heating System
FORCED AIR
Stories
2.0
Total Bedrooms
3
Total Family Rooms
0
Total Rooms
6
Fireplaces
0
Other Buildings & Yards
No OBY Data Found
Sales History
Sale Date
Type
Price
Book / Page
Other Info
12/2/1996
0
0473 / 2086
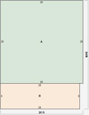
Parcel Sketches
Residential Card 1
A
MAIN
676 square feet
B
UNFIN BSMT BASEMENT UNFINISHED 1S FR ONE STORY FRAME
200 square feet
Parcel Images
Please note:
this tab is for informational purposes only and may not show all delinquencies, see the Taxes tab for more accurate delinquent taxes due.