Elected Officials
Courts
Departments
Initiatives
Open Government
About
Login / Register
Home
/
Property & Tax Records
/
Property Records
/
Property & Tax Search
/
Parcel Profile
/
Print View
Search for Another Parcel
Parcel Profile
Historical Card
Sketches
Photos
Tax Map
Taxes
Print View
Print This Page
Address: 2706 WASHINGTON AVE
Parcel: 19062026020400
Parcel Profile
Address
2706 | WASHINGTON | AVE
Street Status
PAVED | SIDEWALK
School District
CITY OF ERIE SCHOOL
Acreage
0.1102
Classification
R
Land Use Code
SINGLE FAMILY
Legal Description
2706 WASHINGTON AVE 40X120
Square Feet
912
Topo
LEVEL
Utility
ALL PUBLIC
Zoning
Please contact your municipal zoning officer
Deed Book
1280
Deed Page
2398
2025 Tax Values
Land Value / Taxable
16,900 / 16,900.00
Building Value / Taxable
26,400 / 26,400.00
Total Value / Taxable
43,300 / 43,300.00
Clean & Green
Inactive
Homestead Status
Inactive
Farmstead Status
Inactive
Lerta Amount
0
Lerta Expiration Year
0
Residential Data
Card 1
Style
BUNGALOW
Basement
FULL
Year Built
1929
Exterior Wall
FRAME
Total Living Area
912
Full Baths
1
Half Baths
0
Fuel Type
GAS
Heating
CENTRAL
Heating System
FORCED AIR
Stories
1.0
Total Bedrooms
2
Total Family Rooms
0
Total Rooms
5
Fireplaces
0
Other Buildings & Yards
Description
Built
Width
Length
Area
FRAME UTILITY SHED
1980
12
12
144
Sales History
Sale Date
Type
Price
Book / Page
Other Info
10/24/2005
LAND & BUILDING
40000
1280 / 2398
WARRANTY/SURVIVORSHIP DEED
12/5/2001
LAND & BUILDING
18000
831 / 1983
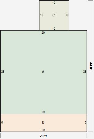
Parcel Sketches
Residential Card 1
A
MAIN
812 square feet
B
EFP ENCL FRAME PORCH
174 square feet
C
1S FR ONE STORY FRAME
100 square feet
Parcel Images