Elected Officials
Courts
Departments
Initiatives
Open Government
About
Login / Register
Home
/
Property & Tax Records
/
Property Records
/
Property & Tax Search
/
Parcel Profile
/
Print View
Search for Another Parcel
Parcel Profile
Historical Card
Sketches
Photos
Tax Map
Taxes
Print View
Print This Page
Address: 2615 AUBURN ST
Parcel: 19062026041200
Parcel Profile
Address
2615 | AUBURN | ST
Street Status
PAVED | SIDEWALK
School District
CITY OF ERIE SCHOOL
Acreage
0.3587
Classification
R
Land Use Code
SINGLE FAMILY
Legal Description
2615 AUBURN ST 132.4 X 114 IR
Square Feet
2027
Topo
LEVEL
Utility
ALL PUBLIC
Zoning
Please contact your municipal zoning officer
Deed Book
1211
Deed Page
0786
2026 Tax Values
Land Value / Taxable
20,900 / 20,900.00
Building Value / Taxable
67,500 / 67,500.00
Total Value / Taxable
88,400 / 88,400.00
Clean & Green
Inactive
Homestead Status
Active
Farmstead Status
Inactive
Lerta Amount
0
Lerta Expiration Year
0
Residential Data
Card 1
Style
OLD STYLE
Basement
FULL
Year Built
1828
Exterior Wall
ALUMINUM/VINYL
Total Living Area
2027
Full Baths
1
Half Baths
0
Fuel Type
GAS
Heating
CENTRAL
Heating System
FORCED AIR
Stories
2.0
Total Bedrooms
3
Total Family Rooms
0
Total Rooms
8
Fireplaces
0
Other Buildings & Yards
Description
Built
Width
Length
Area
FRAME OR CB DETACHED GARAGE
1950
22
22
484
Sales History
Sale Date
Type
Price
Book / Page
Other Info
2/16/2005
LAND & BUILDING
88300
1211 / 0786
WARRANTY/SURVIVORSHIP DEED
7/22/1996
0
0451 / 2036
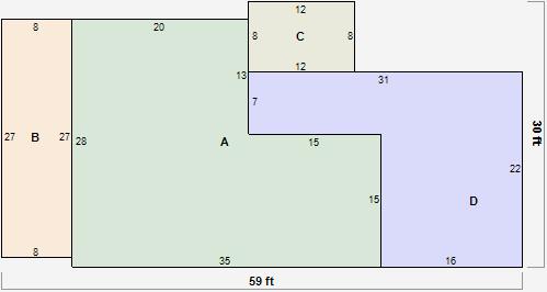
Parcel Sketches
Residential Card 1
A
MAIN
785 square feet
B
EFP ENCL FRAME PORCH
216 square feet
C
EFP ENCL FRAME PORCH
96 square feet
D
1S FR ONE STORY FRAME
457 square feet
Parcel Images
Please note:
this tab is for informational purposes only and may not show all delinquencies, see the Taxes tab for more accurate delinquent taxes due.