Elected Officials
Courts
Departments
Initiatives
Open Government
About
Login / Register
Home
/
Property & Tax Records
/
Property Records
/
Property & Tax Search
/
Parcel Profile
/
Print View
Search for Another Parcel
Parcel Profile
Historical Card
Sketches
Photos
Tax Map
Taxes
Print View
Print This Page
Address: 2806 EMERSON AVE
Parcel: 19062026060400
Parcel Profile
Address
2806 | EMERSON | AVE
Street Status
PAVED | SIDEWALK
School District
CITY OF ERIE SCHOOL
Acreage
0.1873
Classification
R
Land Use Code
SINGLE FAMILY
Legal Description
2806 EMERSON AVE 68X120
Square Feet
1067
Topo
LEVEL
Utility
ALL PUBLIC
Zoning
Please contact your municipal zoning officer
Deed Book
1479
Deed Page
0259
2026 Tax Values
Land Value / Taxable
18,700 / 18,700.00
Building Value / Taxable
57,500 / 57,500.00
Total Value / Taxable
76,200 / 76,200.00
Clean & Green
Inactive
Homestead Status
Inactive
Farmstead Status
Inactive
Lerta Amount
0
Lerta Expiration Year
0
Residential Data
Card 1
Style
CAPE
Basement
FULL
Year Built
1925
Exterior Wall
ALUMINUM/VINYL
Total Living Area
1067
Full Baths
1
Half Baths
0
Fuel Type
GAS
Heating
CENTRAL
Heating System
FORCED AIR
Stories
1.0
Total Bedrooms
3
Total Family Rooms
0
Total Rooms
6
Fireplaces
0
Other Buildings & Yards
Description
Built
Width
Length
Area
FRAME OR CB DETACHED GARAGE
1992
19
32
608
Sales History
Sale Date
Type
Price
Book / Page
Other Info
2/28/2008
LAND & BUILDING
76000
1479 / 0259
DEED
5/8/2007
LAND & BUILDING
12073
1414 / 1092
TAX DEED
10/5/1987
0
0029 / 1891
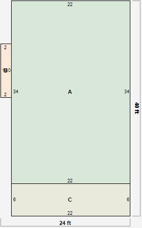
Parcel Sketches
Residential Card 1
A
MAIN
748 square feet
B
FRBAY FRAME BAY
20 square feet
C
OFP OPEN FRAME PORCH
132 square feet
Parcel Images
Please note:
this tab is for informational purposes only and may not show all delinquencies, see the Taxes tab for more accurate delinquent taxes due.