Elected Officials
Courts
Departments
Initiatives
Open Government
About
Login / Register
Home
/
Property & Tax Records
/
Property Records
/
Property & Tax Search
/
Parcel Profile
/
Print View
Search for Another Parcel
Parcel Profile
Historical Card
Sketches
Photos
Tax Map
Taxes
Print View
Print This Page
Address: 2825 OAKWOOD ST
Parcel: 19062028022700
Parcel Profile
Address
2825 | OAKWOOD | ST
Street Status
PAVED | SIDEWALK
School District
CITY OF ERIE SCHOOL
Acreage
0.1377
Classification
R
Land Use Code
SINGLE FAMILY
Legal Description
2825 OAKWOOD ST 50X120
Square Feet
1613
Topo
LEVEL
Utility
ALL PUBLIC
Zoning
Please contact your municipal zoning officer
Deed Book
0608
Deed Page
1045
2026 Tax Values
Land Value / Taxable
18,000 / 18,000.00
Building Value / Taxable
79,200 / 79,200.00
Total Value / Taxable
97,200 / 97,200.00
Clean & Green
Inactive
Homestead Status
Active
Farmstead Status
Inactive
Lerta Amount
0.00
Lerta Expiration Year
2015
Residential Data
Card 1
Style
CAPE
Basement
FULL
Year Built
1930
Exterior Wall
COMPOSITION
Total Living Area
1613
Full Baths
2
Half Baths
0
Fuel Type
GAS
Heating
CENTRAL A/C
Heating System
FORCED AIR
Stories
1.0
Total Bedrooms
4
Total Family Rooms
0
Total Rooms
7
Fireplaces
0
Other Buildings & Yards
Description
Built
Width
Length
Area
FRAME OR CB DETACHED GARAGE
2010
22
32
704
Sales History
Sale Date
Type
Price
Book / Page
Other Info
12/23/1998
0
0608 / 1045
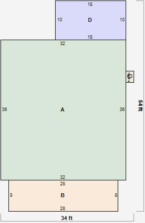
Parcel Sketches
Residential Card 1
A
MAIN
1152 square feet
B
OFP OPEN FRAME PORCH
224 square feet
C
CANPY CANOPY
6 square feet
D
MA_PT CONC/MAS PATIO
180 square feet
Parcel Images
Please note:
this tab is for informational purposes only and may not show all delinquencies, see the Taxes tab for more accurate delinquent taxes due.