Elected Officials
Courts
Departments
Initiatives
Open Government
About
Login / Register
Home
/
Property & Tax Records
/
Property Records
/
Property & Tax Search
/
Parcel Profile
/
Print View
Search for Another Parcel
Parcel Profile
Historical Card
Sketches
Photos
Tax Map
Taxes
Print View
Print This Page
Address: 2908 AUBURN ST
Parcel: 19062029020300
Parcel Profile
Address
2908 | AUBURN | ST
Street Status
PAVED | SIDEWALK
School District
CITY OF ERIE SCHOOL
Acreage
0.1725
Classification
R
Land Use Code
SINGLE FAMILY
Legal Description
2908 AUBURN ST 53X141*81
Square Feet
1284
Topo
LEVEL
Utility
ALL PUBLIC
Zoning
Please contact your municipal zoning officer
Deed Book
2021
Deed Page
000948
2025 Tax Values
Land Value / Taxable
18,500 / 18,500.00
Building Value / Taxable
107,500 / 107,500.00
Total Value / Taxable
126,000 / 126,000.00
Clean & Green
Inactive
Homestead Status
Active
Farmstead Status
Inactive
Lerta Amount
0
Lerta Expiration Year
0
Residential Data
Card 1
Style
OLD STYLE
Basement
FULL
Year Built
1930
Exterior Wall
ALUMINUM/VINYL
Total Living Area
1284
Full Baths
1
Half Baths
0
Fuel Type
GAS
Heating
CENTRAL A/C
Heating System
FORCED AIR
Stories
2.0
Total Bedrooms
3
Total Family Rooms
0
Total Rooms
7
Fireplaces
1
Other Buildings & Yards
Description
Built
Width
Length
Area
FRAME OR CB DETACHED GARAGE
1960
20
18
360
Sales History
Sale Date
Type
Price
Book / Page
Other Info
1/14/2021
LAND & BUILDING
156500
2021 / 000948
SPECIAL WARRANTY DEED
6/13/2012
LAND & BUILDING
126000
2012 / 015458
SPECIAL WARRANTY DEED
12/22/2009
LAND & BUILDING
129900
1610 / 1548
SPECIAL WARRANTY DEED
6/9/2009
LAND & BUILDING
0
1567 / 1392
QUIT CLAIM DEED
1/1/1969
0
0724 / 0299
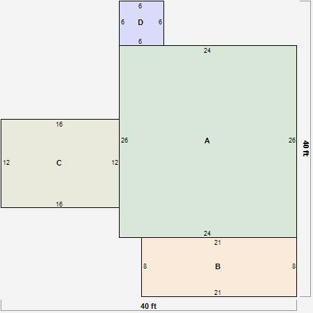
Parcel Sketches
Residential Card 1
A
MAIN
624 square feet
B
OFP OPEN FRAME PORCH
168 square feet
C
MA_PT CONC/MAS PATIO
192 square feet
D
UNFIN BSMT BASEMENT UNFINISHED 1S FR ONE STORY FRAME
36 square feet
Parcel Images