Elected Officials
Courts
Departments
Initiatives
Open Government
About
Login / Register
Home
/
Property & Tax Records
/
Property Records
/
Property & Tax Search
/
Parcel Profile
/
Print View
Search for Another Parcel
Parcel Profile
Historical Card
Sketches
Photos
Tax Map
Taxes
Print View
Print This Page
Address: 3010 GREENGARDEN BLVD
Parcel: 19062029040600
Parcel Profile
Address
3010 | GREENGARDEN | BLVD
Street Status
PAVED | SIDEWALK
School District
CITY OF ERIE SCHOOL
Acreage
0.2277
Classification
R
Land Use Code
SINGLE FAMILY
Legal Description
3010 GREENGARDEN 62X160
Square Feet
1968
Topo
LEVEL
Utility
ALL PUBLIC
Zoning
Please contact your municipal zoning officer
Deed Book
2021
Deed Page
009635
2025 Tax Values
Land Value / Taxable
19,200 / 19,200.00
Building Value / Taxable
96,830 / 96,830.00
Total Value / Taxable
116,030 / 116,030.00
Clean & Green
Inactive
Homestead Status
Active
Farmstead Status
Inactive
Lerta Amount
0
Lerta Expiration Year
0
Residential Data
Card 1
Style
OLD STYLE
Basement
FULL
Year Built
1927
Exterior Wall
FRAME
Total Living Area
1968
Full Baths
1
Half Baths
1
Fuel Type
GAS
Heating
CENTRAL A/C
Heating System
FORCED AIR
Stories
2.0
Total Bedrooms
3
Total Family Rooms
0
Total Rooms
9
Fireplaces
1
Other Buildings & Yards
Description
Built
Width
Length
Area
FRAME OR CB DETACHED GARAGE
1927
20
26
520
Sales History
Sale Date
Type
Price
Book / Page
Other Info
4/21/2021
LAND & BUILDING
191000
2021 / 009635
SPECIAL WARRANTY DEED
6/28/2010
LAND & BUILDING
117000
2010 / 015397
SPECIAL WARRANTY DEED
12/15/1959
0
0790 / 0070
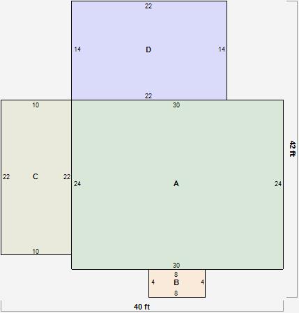
Parcel Sketches
Residential Card 1
A
MAIN
720 square feet
B
OFP OPEN FRAME PORCH
32 square feet
C
UNFIN BSMT BASEMENT UNFINISHED 1S FR ONE STORY FRAME
220 square feet
D
UNFIN BSMT BASEMENT UNFINISHED 1S FR ONE STORY FRAME
308 square feet
Parcel Images