Elected Officials
Courts
Departments
Initiatives
Open Government
About
Login / Register
Home
/
Property & Tax Records
/
Property Records
/
Property & Tax Search
/
Parcel Profile
/
Print View
Search for Another Parcel
Parcel Profile
Historical Card
Sketches
Photos
Tax Map
Taxes
Print View
Print This Page
Address: 2704 OAKWOOD ST
Parcel: 19062030011000
Parcel Profile
Address
2704 | OAKWOOD | ST
Street Status
PAVED | SIDEWALK
School District
CITY OF ERIE SCHOOL
Acreage
0.1598
Classification
R
Land Use Code
SINGLE FAMILY
Legal Description
2704 OAKWOOD ST 58X12O
Square Feet
1238
Topo
LEVEL
Utility
ALL PUBLIC
Zoning
Please contact your municipal zoning officer
Deed Book
2016
Deed Page
000815
2026 Tax Values
Land Value / Taxable
18,300 / 18,300.00
Building Value / Taxable
71,570 / 71,570.00
Total Value / Taxable
89,870 / 89,870.00
Clean & Green
Inactive
Homestead Status
Active
Farmstead Status
Inactive
Lerta Amount
0.00
Lerta Expiration Year
2023
Residential Data
Card 1
Style
CAPE
Basement
FULL
Year Built
1951
Exterior Wall
ALUMINUM/VINYL
Total Living Area
1238
Full Baths
1
Half Baths
1
Fuel Type
GAS
Heating
CENTRAL
Heating System
FORCED AIR
Stories
1.0
Total Bedrooms
2
Total Family Rooms
1
Total Rooms
6
Fireplaces
0
Other Buildings & Yards
Description
Built
Width
Length
Area
FRAME OR CB DETACHED GARAGE
1951
20
22
440
Sales History
Sale Date
Type
Price
Book / Page
Other Info
1/13/2016
LAND & BUILDING
0
2016 / 000815
QUIT CLAIM DEED
3/31/2000
LAND & BUILDING
74900
695 / 1229
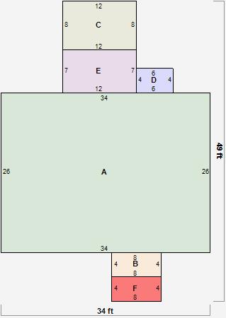
Parcel Sketches
Residential Card 1
A
MAIN
884 square feet
B
EFP ENCL FRAME PORCH
32 square feet
C
WDDCK WOOD DECKS
96 square feet
D
WDDCK WOOD DECKS
24 square feet
E
EFP ENCL FRAME PORCH
84 square feet
F
WDDCK WOOD DECKS
32 square feet
Parcel Images