Elected Officials
Courts
Departments
Initiatives
Open Government
About
Login / Register
Home
/
Property & Tax Records
/
Property Records
/
Property & Tax Search
/
Parcel Profile
/
Print View
Search for Another Parcel
Parcel Profile
Historical Card
Sketches
Photos
Tax Map
Taxes
Print View
Print This Page
Address: 3112 OAKWOOD ST
Parcel: 19062032010100
Parcel Profile
Address
3112 | OAKWOOD | ST
Street Status
PAVED
School District
CITY OF ERIE SCHOOL
Acreage
0.1653
Classification
R
Land Use Code
SINGLE FAMILY
Legal Description
3112 OAKWOOD ST 60 X 120
Square Feet
1847
Topo
LEVEL
Utility
ALL PUBLIC
Zoning
Please contact your municipal zoning officer
Deed Book
2024
Deed Page
016497
2026 Tax Values
Land Value / Taxable
18,400 / 18,400.00
Building Value / Taxable
74,800 / 74,800.00
Total Value / Taxable
93,200 / 93,200.00
Clean & Green
Inactive
Homestead Status
Inactive
Farmstead Status
Inactive
Lerta Amount
0
Lerta Expiration Year
0
Residential Data
Card 1
Style
CAPE
Basement
FULL
Year Built
1929
Exterior Wall
FRAME
Total Living Area
1847
Full Baths
1
Half Baths
0
Fuel Type
GAS
Heating
CENTRAL
Heating System
FORCED AIR
Stories
1.5
Total Bedrooms
5
Total Family Rooms
0
Total Rooms
8
Fireplaces
1
Other Buildings & Yards
No OBY Data Found
Sales History
Sale Date
Type
Price
Book / Page
Other Info
10/11/2024
LAND & BUILDING
0
2024 / 016497
QUIT CLAIM DEED
10/2/2000
LAND & BUILDING
85000
0730 / 0376
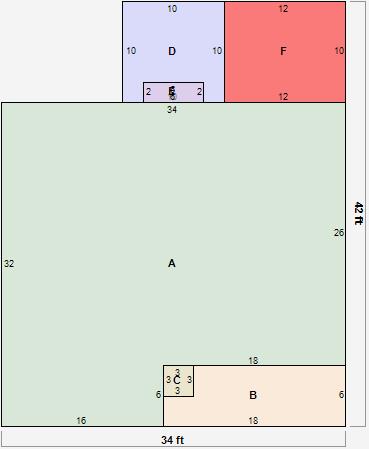
Parcel Sketches
Residential Card 1
A
MAIN
980 square feet
B
OFP OPEN FRAME PORCH
108 square feet
C
EFP ENCL FRAME PORCH
9 square feet
D
WDDCK WOOD DECKS
100 square feet
E
FRBAY FRAME BAY
12 square feet
F
1S FR ONE STORY FRAME
120 square feet
Parcel Images
Please note:
this tab is for informational purposes only and may not show all delinquencies, see the Taxes tab for more accurate delinquent taxes due.