Elected Officials
Courts
Departments
Initiatives
Open Government
About
Login / Register
Home
/
Property & Tax Records
/
Property Records
/
Property & Tax Search
/
Parcel Profile
/
Print View
Search for Another Parcel
Parcel Profile
Historical Card
Sketches
Photos
Tax Map
Taxes
Print View
Print This Page
Address: 3006 HARVARD RD
Parcel: 19062035020300
Parcel Profile
Address
3006 | HARVARD | RD
Street Status
PAVED
School District
CITY OF ERIE SCHOOL
Acreage
0.4172
Classification
R
Land Use Code
SINGLE FAMILY
Legal Description
3006 HARVARD RD 100 X 181.72
Square Feet
1638
Topo
LEVEL
Utility
ALL PUBLIC
Zoning
Please contact your municipal zoning officer
Deed Book
0532
Deed Page
1150
2026 Tax Values
Land Value / Taxable
21,700 / 21,700.00
Building Value / Taxable
79,970 / 79,970.00
Total Value / Taxable
101,670 / 101,670.00
Clean & Green
Inactive
Homestead Status
Active
Farmstead Status
Inactive
Lerta Amount
0
Lerta Expiration Year
0
Residential Data
Card 1
Style
CAPE
Basement
FULL
Year Built
1925
Exterior Wall
FRAME
Total Living Area
1638
Full Baths
2
Half Baths
0
Fuel Type
GAS
Heating
CENTRAL
Heating System
FORCED AIR
Stories
1.0
Total Bedrooms
2
Total Family Rooms
0
Total Rooms
5
Fireplaces
0
Other Buildings & Yards
Description
Built
Width
Length
Area
FRAME OR CB DETACHED GARAGE
1930
20
22
440
CANOPY
1990
12
22
264
Sales History
Sale Date
Type
Price
Book / Page
Other Info
12/4/1997
0
0532 / 1150
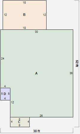
Parcel Sketches
Residential Card 1
A
MAIN
1032 square feet
B
EFP ENCL FRAME PORCH
216 square feet
C
OFP OPEN FRAME PORCH
32 square feet
D
OFP OPEN FRAME PORCH
20 square feet
Parcel Images
Please note:
this tab is for informational purposes only and may not show all delinquencies, see the Taxes tab for more accurate delinquent taxes due.