Elected Officials
Courts
Departments
Initiatives
Open Government
About
Login / Register
Home
/
Property & Tax Records
/
Property Records
/
Property & Tax Search
/
Parcel Profile
/
Print View
Search for Another Parcel
Parcel Profile
Historical Card
Sketches
Photos
Tax Map
Taxes
Print View
Print This Page
Address: 2802 HUDSON RD
Parcel: 19062036040400
Parcel Profile
Address
2802 | HUDSON | RD
Street Status
PAVED | SIDEWALK
School District
CITY OF ERIE SCHOOL
Acreage
0.1428
Classification
R
Land Use Code
SINGLE FAMILY
Legal Description
2802 HUDSON RD 40 X 155.55
Square Feet
1164
Topo
LEVEL
Utility
ALL PUBLIC
Zoning
Please contact your municipal zoning officer
Deed Book
2012
Deed Page
027741
2026 Tax Values
Land Value / Taxable
18,100 / 18,100.00
Building Value / Taxable
56,900 / 56,900.00
Total Value / Taxable
75,000 / 75,000.00
Clean & Green
Inactive
Homestead Status
Inactive
Farmstead Status
Inactive
Lerta Amount
0.00
Lerta Expiration Year
2017
Residential Data
Card 1
Style
OLD STYLE
Basement
FULL
Year Built
1922
Exterior Wall
ALUMINUM/VINYL
Total Living Area
1164
Full Baths
1
Half Baths
1
Fuel Type
GAS
Heating
CENTRAL
Heating System
FORCED AIR
Stories
2.0
Total Bedrooms
3
Total Family Rooms
0
Total Rooms
6
Fireplaces
0
Other Buildings & Yards
Description
Built
Width
Length
Area
FRAME OR CB DETACHED GARAGE
1950
20
22
440
Sales History
Sale Date
Type
Price
Book / Page
Other Info
10/8/2012
LAND & BUILDING
32500
2012 / 027741
WARRANTY/SURVIVORSHIP DEED
6/1/1989
0
0088 / 0614
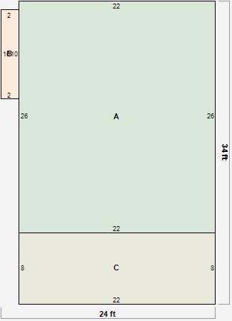
Parcel Sketches
Residential Card 1
A
MAIN
572 square feet
B
UNFIN BSMT BASEMENT UNFINISHED FRBAY FRAME BAY
20 square feet
C
OFP OPEN FRAME PORCH
176 square feet
Parcel Images
Please note:
this tab is for informational purposes only and may not show all delinquencies, see the Taxes tab for more accurate delinquent taxes due.