Elected Officials
Courts
Departments
Initiatives
Open Government
About
Login / Register
Home
/
Property & Tax Records
/
Property Records
/
Property & Tax Search
/
Parcel Profile
/
Print View
Search for Another Parcel
Parcel Profile
Historical Card
Sketches
Photos
Tax Map
Taxes
Print View
Print This Page
Address: 2715 HAMPTON RD
Parcel: 19062036041300
Parcel Profile
Address
2715 | HAMPTON | RD
Street Status
PAVED | SIDEWALK
School District
CITY OF ERIE SCHOOL
Acreage
0.1428
Classification
R
Land Use Code
SINGLE FAMILY
Legal Description
2715 HAMPTON RD 40 X 155.55
Square Feet
1376
Topo
LEVEL
Utility
ALL PUBLIC
Zoning
Please contact your municipal zoning officer
Deed Book
2015
Deed Page
016034
2026 Tax Values
Land Value / Taxable
18,100 / 18,100.00
Building Value / Taxable
53,330 / 53,330.00
Total Value / Taxable
71,430 / 71,430.00
Clean & Green
Inactive
Homestead Status
Inactive
Farmstead Status
Inactive
Lerta Amount
0
Lerta Expiration Year
0
Residential Data
Card 1
Style
OLD STYLE
Basement
FULL
Year Built
1922
Exterior Wall
ALUMINUM/VINYL
Total Living Area
1376
Full Baths
1
Half Baths
0
Fuel Type
GAS
Heating
CENTRAL
Heating System
FORCED AIR
Stories
2.0
Total Bedrooms
3
Total Family Rooms
0
Total Rooms
7
Fireplaces
0
Other Buildings & Yards
No OBY Data Found
Sales History
Sale Date
Type
Price
Book / Page
Other Info
7/28/2015
LAND & BUILDING
34000
2015 / 016034
FIDUCIARY DEED
1/8/2001
0
0746 / 1949
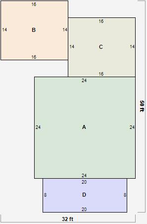
Parcel Sketches
Residential Card 1
A
MAIN
576 square feet
B
WDDCK WOOD DECKS
224 square feet
C
UNFIN BSMT BASEMENT UNFINISHED 1S FR ONE STORY FRAME
224 square feet
D
UNFIN BSMT BASEMENT UNFINISHED EFP ENCL FRAME PORCH
160 square feet
Parcel Images
Please note:
this tab is for informational purposes only and may not show all delinquencies, see the Taxes tab for more accurate delinquent taxes due.