Elected Officials
Courts
Departments
Initiatives
Open Government
About
Login / Register
Home
/
Property & Tax Records
/
Property Records
/
Property & Tax Search
/
Parcel Profile
/
Print View
Search for Another Parcel
Parcel Profile
Historical Card
Sketches
Photos
Tax Map
Taxes
Print View
Print This Page
Address: 2020 W 29TH ST
Parcel: 19062040031900
Parcel Profile
Address
2020 | W | 29TH | ST
Street Status
PAVED
School District
CITY OF ERIE SCHOOL
Acreage
0.2204
Classification
R
Land Use Code
SINGLE FAMILY
Legal Description
2020 W 29TH ST 80X120
Square Feet
1200
Topo
LEVEL
Utility
ALL PUBLIC
Zoning
Please contact your municipal zoning officer
Deed Book
0834
Deed Page
1396
2026 Tax Values
Land Value / Taxable
19,100 / 19,100.00
Building Value / Taxable
62,800 / 62,800.00
Total Value / Taxable
81,900 / 81,900.00
Clean & Green
Inactive
Homestead Status
Inactive
Farmstead Status
Inactive
Lerta Amount
0
Lerta Expiration Year
0
Residential Data
Card 1
Style
CAPE
Basement
FULL
Year Built
1950
Exterior Wall
FRAME
Total Living Area
1200
Full Baths
1
Half Baths
1
Fuel Type
GAS
Heating
CENTRAL
Heating System
FORCED AIR
Stories
1.0
Total Bedrooms
3
Total Family Rooms
0
Total Rooms
5
Fireplaces
1
Other Buildings & Yards
No OBY Data Found
Sales History
Sale Date
Type
Price
Book / Page
Other Info
12/14/2001
LAND & BUILDING
70000
0834 / 1396
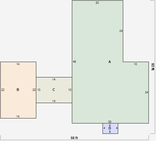
Parcel Sketches
Residential Card 1
A
MAIN
1200 square feet
B
FR GR FRAME GARAGE
308 square feet
C
EFP ENCL FRAME PORCH
140 square feet
D
MA STOOP/TERR MAS STOOP
24 square feet
Parcel Images
Please note:
this tab is for informational purposes only and may not show all delinquencies, see the Taxes tab for more accurate delinquent taxes due.