Elected Officials
Courts
Departments
Initiatives
Open Government
About
Login / Register
Home
/
Property & Tax Records
/
Property Records
/
Property & Tax Search
/
Parcel Profile
/
Print View
Search for Another Parcel
Parcel Profile
Historical Card
Sketches
Photos
Tax Map
Taxes
Print View
Print This Page
Address: 7800 W LAKE RD
Parcel: 21005005005100
Parcel Profile
Address
7800 | W | LAKE | RD
Street Status
PAVED
School District
FAIRVIEW SCHOOL
Acreage
71.3000
Classification
F
Land Use Code
20 - 79.99 ACRES
Legal Description
7800 W LAKE RD 71.35 AC
Square Feet
1970
Topo
LEVEL
Utility
WELL | SEPTIC
Zoning
Please contact your municipal zoning officer
Deed Book
2025
Deed Page
015372
2025 Tax Values
Land Value / Taxable
240,100 / 83,000.00
Building Value / Taxable
97,700 / 97,700.00
Total Value / Taxable
337,800 / 180,700.00
Clean & Green
Active
Homestead Status
Inactive
Farmstead Status
Inactive
Lerta Amount
0
Lerta Expiration Year
0
Residential Data
Card 1
Style
OLD STYLE
Basement
FULL
Year Built
1900
Exterior Wall
COMPOSITION
Total Living Area
1970
Full Baths
1
Half Baths
0
Fuel Type
GAS
Heating
CENTRAL
Heating System
HOT WATER
Stories
1.5
Total Bedrooms
3
Total Family Rooms
1
Total Rooms
11
Fireplaces
0
Other Buildings & Yards
Description
Built
Width
Length
Area
BANK BARN
2003
24
44
1056
Sales History
Sale Date
Type
Price
Book / Page
Other Info
9/5/2025
LAND & BUILDING
0
2025 / 015372
FIDUCIARY DEED
5/20/2024
LAND & BUILDING
0
2024 / 007539
SPECIAL WARRANTY DEED
8/4/2008
0
1513 / 0055
8/4/2008
0
1513 / 0058
8/4/2008
0
1513 / 0061
6/25/2004
0
1149 / 0048
6/25/2004
0
1149 / 0043
8/5/1980
0
1393 / 0531
8/5/1980
LAND & BUILDING
0
1393 / 0534
AFFIDAVIT
3/7/1961
0
0834 / 0318
Parcel Sketches
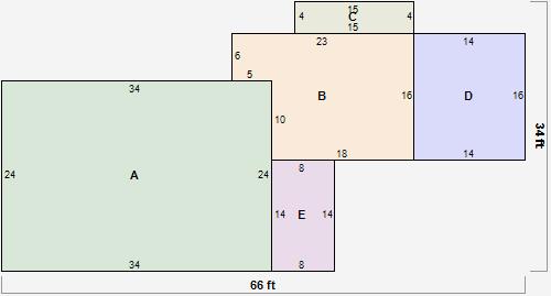
Residential Card 1
A
MAIN
816 square feet
B
UNFIN BSMT BASEMENT UNFINISHED 1S FR ONE STORY FRAME
318 square feet
C
OFP OPEN FRAME PORCH
60 square feet
D
UNFIN BSMT BASEMENT UNFINISHED 1S FR ONE STORY FRAME
224 square feet
E
OFP OPEN FRAME PORCH
112 square feet
Parcel Images