Elected Officials
Courts
Departments
Initiatives
Open Government
About
Login / Register
Home
/
Property & Tax Records
/
Property Records
/
Property & Tax Search
/
Parcel Profile
/
Print View
Search for Another Parcel
Parcel Profile
Historical Card
Sketches
Photos
Tax Map
Taxes
Print View
Print This Page
Address: 7700 ADMIRAL DR
Parcel: 21006005000800
Parcel Profile
Address
7700 | ADMIRAL | DR
Street Status
PRIVATE
School District
FAIRVIEW SCHOOL
Acreage
7.3600
Classification
R
Land Use Code
SINGLE FAMILY
Legal Description
7700 ADMIRAL DR 7.36 AC CAL
Square Feet
2956
Topo
LEVEL
Utility
GAS | WELL | SEPTIC
Zoning
Please contact your municipal zoning officer
Deed Book
2020
Deed Page
003113
2026 Tax Values
Land Value / Taxable
396,300 / 396,300.00
Building Value / Taxable
255,610 / 255,610.00
Total Value / Taxable
651,910 / 651,910.00
Clean & Green
Inactive
Homestead Status
Inactive
Farmstead Status
Inactive
Lerta Amount
0
Lerta Expiration Year
0
Residential Data
Card 1
Style
CONVENTIONAL
Basement
FULL
Year Built
1920
Exterior Wall
STONE
Total Living Area
2956
Full Baths
4
Half Baths
1
Fuel Type
GAS
Heating
CENTRAL A/C
Heating System
FORCED AIR
Stories
2.0
Total Bedrooms
4
Total Family Rooms
0
Total Rooms
8
Fireplaces
3
Other Buildings & Yards
Description
Built
Width
Length
Area
FRAME OR CB DETACHED GARAGE
1930
20
26
520
CABANA/GAZEBO
1940
8
8
64
Sales History
Sale Date
Type
Price
Book / Page
Other Info
2/18/2020
LAND & BUILDING
612000
2020 / 003113
SPECIAL WARRANTY DEED
11/30/2016
LAND & BUILDING
695000
2016 / 026047
FIDUCIARY DEED
9/2/2015
LAND & BUILDING
0
2015 / 019279
QUIT CLAIM DEED
9/2/2015
LAND & BUILDING
0
2015 / 019278
QUIT CLAIM DEED
10/29/2010
LAND & BUILDING
800000
2010 / 027079
WARRANTY/SURVIVORSHIP DEED
12/9/1985
LAND & BUILDING
0
1611 / 0121
AFFIDAVIT
9/16/1983
207500
1509 / 0471
2/26/1952
0
0617 / 0233
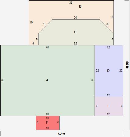
Parcel Sketches
Residential Card 1
A
MAIN
1200 square feet
B
WDDCK WOOD DECKS
368 square feet
C
UNFIN BSMT BASEMENT UNFINISHED 1S FR ONE STORY FRAME
316 square feet
D
EFP ENCL FRAME PORCH
264 square feet
E
MA_PT CONC/MAS PATIO
96 square feet
F
MA STOOP/TERR MAS STOOP
60 square feet
Parcel Images
Please note:
this tab is for informational purposes only and may not show all delinquencies, see the Taxes tab for more accurate delinquent taxes due.