Elected Officials
Courts
Departments
Initiatives
Open Government
About
Login / Register
Home
/
Property & Tax Records
/
Property Records
/
Property & Tax Search
/
Parcel Profile
/
Print View
Search for Another Parcel
Parcel Profile
Historical Card
Sketches
Photos
Tax Map
Taxes
Print View
Print This Page
Address: 600 AVONIA RD
Parcel: 21008005002700
Parcel Profile
Address
600 | AVONIA | RD
Street Status
PAVED
School District
FAIRVIEW SCHOOL
Acreage
0.5076
Classification
R
Land Use Code
SINGLE FAMILY
Legal Description
600 AVONIA RD 134 X 165
Square Feet
1156
Topo
LEVEL
Utility
GAS | WELL | SEPTIC
Zoning
Please contact your municipal zoning officer
Deed Book
2025
Deed Page
016528
2025 Tax Values
Land Value / Taxable
26,200 / 26,200.00
Building Value / Taxable
58,800 / 58,800.00
Total Value / Taxable
85,000 / 85,000.00
Clean & Green
Inactive
Homestead Status
Active
Farmstead Status
Inactive
Lerta Amount
0
Lerta Expiration Year
0
Residential Data
Card 1
Style
RANCH
Basement
FULL
Year Built
1937
Exterior Wall
ALUMINUM/VINYL
Total Living Area
1156
Full Baths
1
Half Baths
0
Fuel Type
OIL
Heating
CENTRAL
Heating System
FORCED AIR
Stories
1.0
Total Bedrooms
3
Total Family Rooms
0
Total Rooms
5
Fireplaces
0
Other Buildings & Yards
Description
Built
Width
Length
Area
FRAME UTILITY SHED
1998
12
16
192
Sales History
Sale Date
Type
Price
Book / Page
Other Info
9/22/2025
LAND & BUILDING
192500
2025 / 016528
SPECIAL WARRANTY DEED
7/27/2011
LAND & BUILDING
0
2011 / 017214
QUIT CLAIM DEED
2/6/1979
LAND & BUILDING
0
1338 / 0248
AFFIDAVIT
3/22/1973
31400
1091 / 0468
5/28/1966
0
0729 / 0563
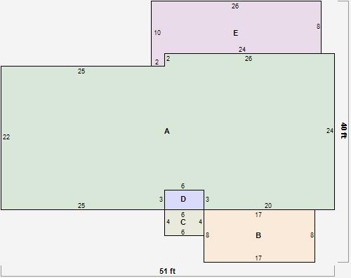
Parcel Sketches
Residential Card 1
A
MAIN
1156 square feet
B
WDDCK WOOD DECKS
136 square feet
C
MA STOOP/TERR MAS STOOP
24 square feet
D
OFP OPEN FRAME PORCH
18 square feet
E
WDDCK WOOD DECKS
212 square feet
Parcel Images