Elected Officials
Courts
Departments
Initiatives
Open Government
About
Login / Register
Home
/
Property & Tax Records
/
Property Records
/
Property & Tax Search
/
Parcel Profile
/
Print View
Search for Another Parcel
Parcel Profile
Historical Card
Sketches
Photos
Tax Map
Taxes
Print View
Print This Page
Address: 6860 W LAKE RD
Parcel: 21021014000800
Parcel Profile
Address
6860 | W | LAKE | RD
Street Status
PAVED
School District
FAIRVIEW SCHOOL
Acreage
2.5000
Classification
R
Land Use Code
SINGLE FAMILY
Legal Description
6860 W LAKE RD 2.5 AC
Square Feet
2190
Topo
BELOW STREET
Utility
GAS | WELL | SEPTIC
Zoning
Please contact your municipal zoning officer
Deed Book
2010
Deed Page
015217
2025 Tax Values
Land Value / Taxable
34,500 / 34,500.00
Building Value / Taxable
133,300 / 133,300.00
Total Value / Taxable
167,800 / 167,800.00
Clean & Green
Inactive
Homestead Status
Active
Farmstead Status
Inactive
Lerta Amount
0
Lerta Expiration Year
0
Residential Data
Card 1
Style
CAPE
Basement
FULL
Year Built
1929
Exterior Wall
ALUMINUM/VINYL
Total Living Area
2190
Full Baths
1
Half Baths
1
Fuel Type
GAS
Heating
CENTRAL
Heating System
FORCED AIR
Stories
1.0
Total Bedrooms
2
Total Family Rooms
1
Total Rooms
6
Fireplaces
1
Other Buildings & Yards
Description
Built
Width
Length
Area
FRAME OR CB DETACHED GARAGE
1940
20
64
1280
FRAME UTILITY SHED
1940
19
12
228
Sales History
Sale Date
Type
Price
Book / Page
Other Info
6/25/2010
LAND & BUILDING
174000
2010 / 015217
WARRANTY/SURVIVORSHIP DEED
11/4/2008
LAND & BUILDING
170000
1529 / 1853
DEED
8/6/1993
LAND & BUILDING
0
0284 / 1184
AFFIDAVIT
2/5/1993
60000
0253 / 0866
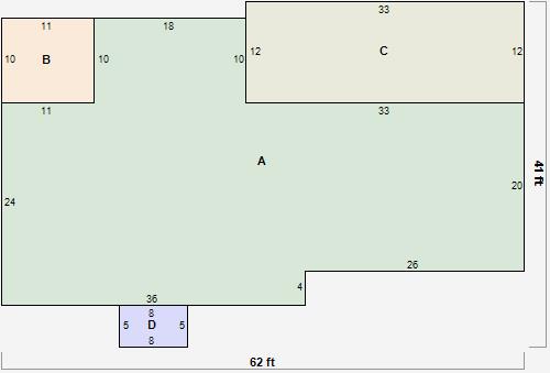
Parcel Sketches
Residential Card 1
A
MAIN
1564 square feet
B
OFP OPEN FRAME PORCH EFP ENCL FRAME PORCH
110 square feet
C
WDDCK WOOD DECKS
396 square feet
D
OFP OPEN FRAME PORCH
40 square feet
Parcel Images