Address: 6870 W LAKE RD   Parcel: 21021014000900
Parcel Profile
Address6870 | W | LAKE | RD
Street StatusPAVED
School DistrictFAIRVIEW SCHOOL
Acreage1.5600
ClassificationE
Land Use CodeEXEMPT SERVICE CONNECTED (VETERANS)
Legal Description6870 W LAKE RD 1.56 AC CAL
Square Feet2193
TopoBELOW STREET
UtilityGAS | WELL | SEPTIC
ZoningPlease contact your municipal zoning officer
Deed Book2013
Deed Page001028
2025 Tax Values
Land Value / Taxable31,700 / 31,700.00
Building Value / Taxable109,400 / 109,400.00
Total Value / Taxable141,100 / 141,100.00
Clean & GreenInactive
Homestead StatusInactive
Farmstead StatusInactive
Lerta Amount0
Lerta Expiration Year0
Residential Data
Card 1
     StyleCAPE
     BasementFULL
     Year Built1935
     Exterior WallALUMINUM/VINYL
     Total Living Area2193
     Full Baths1
     Half Baths1
     Fuel TypeGAS
     HeatingCENTRAL
     Heating SystemHOT WATER
     Stories1.0
     Total Bedrooms4
     Total Family Rooms0
     Total Rooms7
     Fireplaces1
Other Buildings & Yards
DescriptionBuiltWidthLengthArea
 FOUR SIDE CLOSED MTL POLE BLDG 2019 24 34 816
Sales History
Sale DateTypePriceBook / PageOther Info
1/14/2013LAND & BUILDING1300002013 / 001028WARRANTY/SURVIVORSHIP DEED
5/7/2004LAND & BUILDING01132 / 2302FIDUCIARY DEED
1/29/1949LAND & BUILDING00534 / 0298AFFIDAVIT



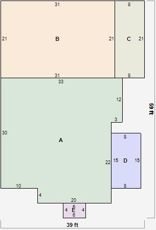
Parcel Sketches

Residential Card 1

Residential Card 1
AMAIN1016 square feet
BFR GR FRAME GARAGE 1S FR ONE STORY FRAME 651 square feet
C WDDCK WOOD DECKS 168 square feet
D 1S FR ONE STORY FRAME 120 square feet
E EFP ENCL FRAME PORCH 24 square feet

Parcel Images

parcel photo