Elected Officials
Courts
Departments
Initiatives
Open Government
About
Login / Register
Home
/
Property & Tax Records
/
Property Records
/
Property & Tax Search
/
Parcel Profile
/
Print View
Search for Another Parcel
Parcel Profile
Historical Card
Sketches
Photos
Tax Map
Taxes
Print View
Print This Page
Address: 865 DUTCH RD
Parcel: 21028017001600
Parcel Profile
Address
865 | DUTCH | RD
Street Status
PAVED
School District
FAIRVIEW SCHOOL
Acreage
1.9200
Classification
R
Land Use Code
SINGLE FAMILY
Legal Description
865 DUTCH RD 1.92 AC
Square Feet
3030
Topo
LEVEL
Utility
GAS | WELL | SEPTIC
Zoning
Please contact your municipal zoning officer
Deed Book
2015
Deed Page
025232
2026 Tax Values
Land Value / Taxable
76,700 / 76,700.00
Building Value / Taxable
300,900 / 300,900.00
Total Value / Taxable
377,600 / 377,600.00
Clean & Green
Inactive
Homestead Status
Active
Farmstead Status
Inactive
Lerta Amount
0
Lerta Expiration Year
0
Residential Data
Card 1
Style
CONVENTIONAL
Basement
FULL
Year Built
1930
Exterior Wall
ALUMINUM/VINYL
Total Living Area
3030
Full Baths
1
Half Baths
2
Fuel Type
GAS
Heating
CENTRAL
Heating System
FORCED AIR
Stories
2.0
Total Bedrooms
4
Total Family Rooms
1
Total Rooms
8
Fireplaces
2
Other Buildings & Yards
Description
Built
Width
Length
Area
FOUR SIDE CLOSED WD POLE BLDG
1960
40
44
1760
FRAME OR CB DETACHED GARAGE
1990
0
0
1252
REINFORCED CONCRETE POOL
2012
20
40
800
Sales History
Sale Date
Type
Price
Book / Page
Other Info
11/12/2015
LAND & BUILDING
440000
2015 / 025232
DEED
9/25/2000
225000
0728 / 0842
8/1/1962
0
0861 / 0297
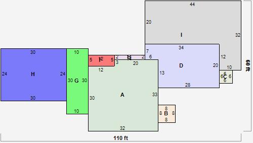
Parcel Sketches
Residential Card 1
A
MAIN
1020 square feet
B
OFP OPEN FRAME PORCH
64 square feet
C
EFP ENCL FRAME PORCH
36 square feet
D
1S FR ONE STORY FRAME
602 square feet
E
1S FR ONE STORY FRAME
28 square feet
F
1S FR ONE STORY FRAME
60 square feet
G
1S FR ONE STORY FRAME
300 square feet
H
FR GR FRAME GARAGE
720 square feet
I
WDDCK WOOD DECKS
1000 square feet
Parcel Images
Please note:
this tab is for informational purposes only and may not show all delinquencies, see the Taxes tab for more accurate delinquent taxes due.