Elected Officials
Courts
Departments
Initiatives
Open Government
About
Login / Register
Home
/
Property & Tax Records
/
Property Records
/
Property & Tax Search
/
Parcel Profile
/
Print View
Search for Another Parcel
Parcel Profile
Historical Card
Sketches
Photos
Tax Map
Taxes
Print View
Print This Page
Address: 2020 MANCHESTER RD
Parcel: 21041058001200
Parcel Profile
Address
2020 | MANCHESTER | RD
Street Status
PAVED
School District
FAIRVIEW SCHOOL
Acreage
2.6900
Classification
R
Land Use Code
SINGLE FAMILY
Legal Description
2020 MANCHESTER RD 2.685 AC
Square Feet
1854
Topo
LEVEL
Utility
ALL PUBLIC
Zoning
Please contact your municipal zoning officer
Deed Book
0686
Deed Page
1010
2026 Tax Values
Land Value / Taxable
40,300 / 40,300.00
Building Value / Taxable
70,200 / 70,200.00
Total Value / Taxable
110,500 / 110,500.00
Clean & Green
Inactive
Homestead Status
Active
Farmstead Status
Inactive
Lerta Amount
0
Lerta Expiration Year
0
Residential Data
Card 1
Style
OLD STYLE
Basement
FULL
Year Built
1920
Exterior Wall
ALUMINUM/VINYL
Total Living Area
1854
Full Baths
1
Half Baths
0
Fuel Type
GAS
Heating
CENTRAL
Heating System
FORCED AIR
Stories
2.0
Total Bedrooms
4
Total Family Rooms
0
Total Rooms
9
Fireplaces
0
Other Buildings & Yards
Description
Built
Width
Length
Area
FRAME OR CB DETACHED GARAGE
1930
22
46
1012
METAL SHED
1989
12
24
288
FRAME UTILITY SHED
1989
8
12
96
Sales History
Sale Date
Type
Price
Book / Page
Other Info
2/4/2000
LAND & BUILDING
0
0686 / 1010
4/17/1958
0
0775 / 0384
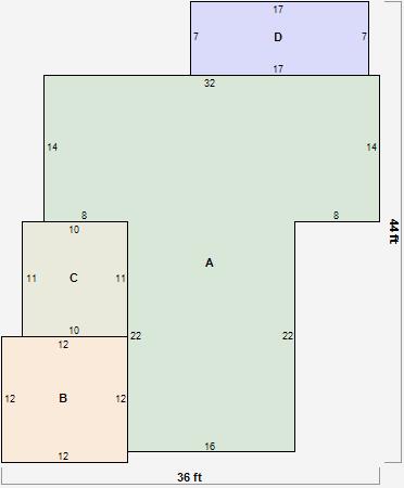
Parcel Sketches
Residential Card 1
A
MAIN
800 square feet
B
1S FR ONE STORY FRAME
144 square feet
C
1S FR ONE STORY FRAME
110 square feet
D
EFP ENCL FRAME PORCH
119 square feet
Parcel Images
Please note:
this tab is for informational purposes only and may not show all delinquencies, see the Taxes tab for more accurate delinquent taxes due.