Elected Officials
Courts
Departments
Initiatives
Open Government
About
Login / Register
Home
/
Property & Tax Records
/
Property Records
/
Property & Tax Search
/
Parcel Profile
/
Print View
Search for Another Parcel
Parcel Profile
Historical Card
Sketches
Photos
Tax Map
Taxes
Print View
Print This Page
Address: 6770 MAYFIELD DR
Parcel: 21043062001300
Parcel Profile
Address
6770 | MAYFIELD | DR
Street Status
PAVED
School District
FAIRVIEW SCHOOL
Acreage
0.4591
Classification
R
Land Use Code
SINGLE FAMILY
Legal Description
6770 MAYFIELD DR 100 X 200
Square Feet
1785
Topo
LEVEL
Utility
ALL PUBLIC
Zoning
Please contact your municipal zoning officer
Deed Book
0475
Deed Page
2187
2026 Tax Values
Land Value / Taxable
34,000 / 34,000.00
Building Value / Taxable
106,100 / 106,100.00
Total Value / Taxable
140,100 / 140,100.00
Clean & Green
Inactive
Homestead Status
Active
Farmstead Status
Inactive
Lerta Amount
0
Lerta Expiration Year
0
Residential Data
Card 1
Style
RANCH
Basement
FULL
Year Built
1926
Exterior Wall
FRAME
Total Living Area
1785
Full Baths
2
Half Baths
0
Fuel Type
GAS
Heating
CENTRAL A/C
Heating System
FORCED AIR
Stories
1.0
Total Bedrooms
3
Total Family Rooms
1
Total Rooms
5
Fireplaces
1
Other Buildings & Yards
Description
Built
Width
Length
Area
FRAME UTILITY SHED
1980
10
10
100
1S LEAN TO
2008
10
12
120
FOUR SIDE CLOSED WD POLE BLDG
2021
20
20
400
Sales History
Sale Date
Type
Price
Book / Page
Other Info
12/13/1996
LAND & BUILDING
95000
0475 / 2187
8/6/1993
82000
0284 / 0983
4/16/1963
0
0874 / 0088
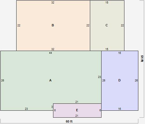
Parcel Sketches
Residential Card 1
A
MAIN
1081 square feet
B
1S FR ONE STORY FRAME
704 square feet
C
WDDCK WOOD DECKS
330 square feet
D
FR GR FRAME GARAGE
416 square feet
E
OFP OPEN FRAME PORCH
126 square feet
Parcel Images
Please note:
this tab is for informational purposes only and may not show all delinquencies, see the Taxes tab for more accurate delinquent taxes due.