Elected Officials
Courts
Departments
Initiatives
Open Government
About
Login / Register
Home
/
Property & Tax Records
/
Property Records
/
Property & Tax Search
/
Parcel Profile
/
Print View
Search for Another Parcel
Parcel Profile
Historical Card
Sketches
Photos
Tax Map
Taxes
Print View
Print This Page
Address: 2351 AVONIA RD
Parcel: 21046061001200
Parcel Profile
Address
2351 | AVONIA | RD
Street Status
PAVED
School District
FAIRVIEW SCHOOL
Acreage
2.0600
Classification
R
Land Use Code
SINGLE FAMILY
Legal Description
2351 AVONIA RD 2.06 AC
Square Feet
3358
Topo
LEVEL
Utility
ALL PUBLIC
Zoning
Please contact your municipal zoning officer
Deed Book
1363
Deed Page
0378
2026 Tax Values
Land Value / Taxable
38,200 / 38,200.00
Building Value / Taxable
140,400 / 140,400.00
Total Value / Taxable
178,600 / 178,600.00
Clean & Green
Inactive
Homestead Status
Inactive
Farmstead Status
Inactive
Lerta Amount
0
Lerta Expiration Year
0
Residential Data
Card 1
Style
OLD STYLE
Basement
FULL
Year Built
1906
Exterior Wall
ALUMINUM/VINYL
Total Living Area
3358
Full Baths
1
Half Baths
0
Fuel Type
GAS
Heating
CENTRAL
Heating System
FORCED AIR
Stories
2.0
Total Bedrooms
4
Total Family Rooms
0
Total Rooms
9
Fireplaces
0
Other Buildings & Yards
Description
Built
Width
Length
Area
FOUR SIDE CLOSED MTL POLE BLDG
2025
36
40
1440
1S LEAN TO
2025
10
40
400
FRAME UTILITY SHED
2025
15
23
345
Sales History
Sale Date
Type
Price
Book / Page
Other Info
9/20/2006
LAND & BUILDING
0
1363 / 0378
WARRANTY/SURVIVORSHIP DEED
7/6/2006
LAND & BUILDING
149900
1342 / 1299
DEED
10/7/2005
LAND & BUILDING
0
1276 / 1785
SHERIFF'S DED
8/3/1990
80000
0132 / 0739
1/1/1965
0
0920 / 0056
1/20/1961
0
0832 / 0228
6/26/1956
0
0732 / 0202
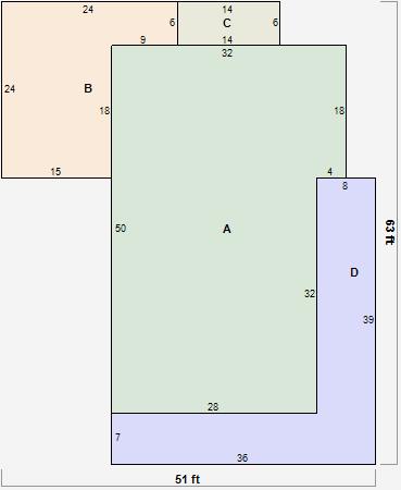
Parcel Sketches
Residential Card 1
A
MAIN
1472 square feet
B
1S FR ONE STORY FRAME
414 square feet
C
EFP ENCL FRAME PORCH
84 square feet
D
OFP OPEN FRAME PORCH
508 square feet
Parcel Images
Please note:
this tab is for informational purposes only and may not show all delinquencies, see the Taxes tab for more accurate delinquent taxes due.