Elected Officials
Courts
Departments
Initiatives
Open Government
About
Login / Register
Home
/
Property & Tax Records
/
Property Records
/
Property & Tax Search
/
Parcel Profile
/
Print View
Search for Another Parcel
Parcel Profile
Historical Card
Sketches
Photos
Tax Map
Taxes
Print View
Print This Page
Address: 2320 LOHRER RD
Parcel: 21046063002500
Parcel Profile
Address
2320 | LOHRER | RD
Street Status
PAVED
School District
FAIRVIEW SCHOOL
Acreage
0.4304
Classification
R
Land Use Code
SINGLE FAMILY
Legal Description
2320 LOHRER RD 150 X 124.99
Square Feet
924
Topo
LEVEL
Utility
ALL PUBLIC
Zoning
Please contact your municipal zoning officer
Deed Book
1328
Deed Page
0058
2026 Tax Values
Land Value / Taxable
17,900 / 17,900.00
Building Value / Taxable
44,700 / 44,700.00
Total Value / Taxable
62,600 / 62,600.00
Clean & Green
Inactive
Homestead Status
Active
Farmstead Status
Inactive
Lerta Amount
0
Lerta Expiration Year
0
Residential Data
Card 1
Style
BUNGALOW
Basement
FULL
Year Built
1930
Exterior Wall
FRAME
Total Living Area
924
Full Baths
1
Half Baths
0
Fuel Type
GAS
Heating
CENTRAL
Heating System
FORCED AIR
Stories
1.0
Total Bedrooms
2
Total Family Rooms
0
Total Rooms
5
Fireplaces
0
Other Buildings & Yards
Description
Built
Width
Length
Area
FRAME OR CB DETACHED GARAGE
1977
24
24
576
Sales History
Sale Date
Type
Price
Book / Page
Other Info
11/3/1978
38200
1328 / 0058
9/25/1978
34200
1321 / 0590
11/26/1973
15000
1110 / 0055
1/31/1956
0
0722 / 0051
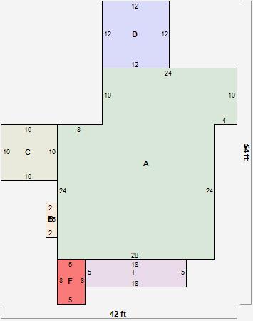
Parcel Sketches
Residential Card 1
A
MAIN
912 square feet
B
FRBAY FRAME BAY
12 square feet
C
MA_PT CONC/MAS PATIO
100 square feet
D
WDDCK WOOD DECKS
144 square feet
E
OFP OPEN FRAME PORCH
90 square feet
F
WDDCK WOOD DECKS
40 square feet
Parcel Images
Please note:
this tab is for informational purposes only and may not show all delinquencies, see the Taxes tab for more accurate delinquent taxes due.