Address: 2751 2771 AVONIA RD   Parcel: 21048069000200
Parcel Profile
Address2751 | 2771 | AVONIA | RD
Street StatusPAVED
School DistrictFAIRVIEW SCHOOL
Acreage1.0000
ClassificationR
Land Use CodeMULTIPLE DWELLINGS
Legal Description2751 2771 AVONIA RD 1.009 AC
Square Feet4424
TopoLEVEL
UtilityWELL | SEPTIC
ZoningPlease contact your municipal zoning officer
Deed Book2024
Deed Page011607
2026 Tax Values
Land Value / Taxable34,500 / 34,500.00
Building Value / Taxable139,100 / 139,100.00
Total Value / Taxable173,600 / 173,600.00
Clean & GreenInactive
Homestead StatusInactive
Farmstead StatusInactive
Lerta Amount0
Lerta Expiration Year0
Residential Data
Card 1
     StyleOLD STYLE
     BasementPART
     Year Built1870
     Exterior WallALUMINUM/VINYL
     Total Living Area2440
     Full Baths1
     Half Baths0
     Fuel TypeGAS
     HeatingCENTRAL
     Heating SystemFORCED AIR
     Stories2.0
     Total Bedrooms4
     Total Family Rooms0
     Total Rooms7
     Fireplaces0
Card 2
     StyleOLD STYLE
     BasementFULL
     Year Built1877
     Exterior WallALUMINUM/VINYL
     Total Living Area1984
     Full Baths1
     Half Baths1
     Fuel TypeGAS
     HeatingCENTRAL
     Heating SystemFORCED AIR
     Stories2.0
     Total Bedrooms4
     Total Family Rooms0
     Total Rooms9
     Fireplaces0
Other Buildings & Yards
DescriptionBuiltWidthLengthArea
 FLAT BARN 1900 22 37 814
Sales History
Sale DateTypePriceBook / PageOther Info
7/26/2024LAND & BUILDING1150002024 / 011607SPECIAL WARRANTY DEED
9/27/1999 00664 / 1191 
7/3/1996LAND & BUILDING105000449 / 91 



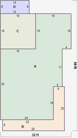
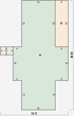
Parcel Sketches

Residential Card 1

Residential Card 1
AMAIN1092 square feet
B OFP OPEN FRAME PORCH 215 square feet
CUNFIN BSMT BASEMENT UNFINISHED 1S FR ONE STORY FRAME 256 square feet
D EFP ENCL FRAME PORCH 78 square feet

Residential Card 2

Residential Card 2
AMAIN992 square feet
B EFP ENCL FRAME PORCH 132 square feet
C WDDCK WOOD DECKS 24 square feet

Parcel Images

parcel photoparcel photo